99+ Mẫu nhà cấp 4 gác lửng 3 phòng ngủ đẹp, tối ưu nhất
DURAflex đăng vào lúc 02/01/2026 - 16:00
Nhà cấp 4 gác lửng 3 phòng ngủ đang là xu hướng được nhiều gia đình lựa chọn bởi tính ứng dụng cao và sự đa dạng về thiết kế. Với diện tích đất hạn chế, ngôi nhà gác lửng vẫn đáp ứng đầy đủ nhu cầu sinh hoạt của cả gia đình. Bài viết này DURAflex sẽ giới thiệu đến bạn những mẫu nhà gác lửng 3 phòng ngủ đẹp, hiện đại và được yêu thích nhất năm 2026.
- Ưu điểm của nhà gác lửng 3 phòng ngủ
- Top các mẫu nhà gác lửng 3 phòng ngủ đẹp, ấn tượng, được yêu thích nhất 2026
- Bản vẽ nhà gác lửng 3 phòng ngủ chi tiết, đầy đủ công năng
- Mẫu phối cảnh nhà gác lửng 3 phòng ngủ 500 triệu đẹp
- Lưu ý khi xây nhà gác lửng 3 phòng ngủ
- Chi phí xây nhà gác lửng 3 phòng ngủ
- Một số câu hỏi thường gặp về nhà gác lửng 3 phòng ngủ
Nhà cấp 4 gác lửng 3 phòng ngủ là gì?
Nhà cấp 4 gác lửng 3 phòng ngủ là kiểu nhà được xây dựng trên nền tảng nhà cấp 4 truyền thống và bổ sung thêm một tầng lửng phía trên nhằm tăng diện tích sử dụng. Thiết kế này giúp tối ưu không gian theo chiều cao mà không làm phát sinh quá nhiều chi phí xây dựng như nhà cao tầng. Nhờ đó, gia chủ vẫn có thêm diện tích sinh hoạt trong khi tổng thể công trình vẫn giữ được sự gọn gàng, cân đối.
Mẫu nhà gác lửng 3 phòng ngủ được xem là giải pháp phù hợp cho những gia đình có quỹ đất hạn chế hoặc ngân sách vừa phải. Với cách bố trí khoa học, ngôi nhà vẫn đáp ứng đầy đủ nhu cầu sinh hoạt cho khoảng 3-4 thành viên. Các phòng chức năng cơ bản như phòng khách, phòng bếp, phòng vệ sinh và ba phòng ngủ được sắp xếp hợp lý, đảm bảo sự riêng tư nhưng vẫn tạo cảm giác thông thoáng, hiện đại.
Thông thường, khu vực phòng ngủ hoặc phòng thờ sẽ được bố trí trên gác lửng để tăng tính riêng tư và tách biệt khỏi không gian sinh hoạt chung. Trong khi đó, phòng khách, phòng bếp và khu vệ sinh thường đặt tại tầng trệt để thuận tiện cho việc sử dụng hằng ngày. Một số thiết kế còn kết hợp thêm sân vườn nhỏ, giúp không gian sống trở nên thoáng mát và gần gũi với thiên nhiên.
Nhờ ưu điểm tiết kiệm chi phí, tối ưu diện tích và đảm bảo công năng, nhà cấp 4 gác lửng 3 phòng ngủ ngày càng được nhiều gia đình lựa chọn, đặc biệt là các cặp vợ chồng trẻ mong muốn sở hữu không gian sống tiện nghi và phù hợp với nhu cầu thực tế.

Nhà cấp 4 gác lửng 3 phòng ngủ là kiểu nhà cấp 4 có bổ sung thêm một tầng lửng phía trên để tăng diện tích (Nguồn: Internet)
>> Tìm hiểu thêm:
- Nhà cấp 4 là gì? Đặc điểm, cách phân biệt và quy định mới nhất
- Nhà cấp 3 là gì? Cách phân loại nhà ở tại Việt Nam
- Nhà sàn là gì? Khám phá các mẫu nhà sàn độc đáo, ấn tượng 2026
Ưu điểm của nhà gác lửng 3 phòng ngủ
Nhà gác lửng 3 phòng ngủ được nhiều gia chủ ưa chuộng nhờ sở hữu các ưu điểm nổi bật sau:
Nhà gác lửng 3 phòng ngủ giúp tối ưu hóa không gian
- Tận dụng không gian góc "chết": Khu vực dưới cầu thang thường bị bỏ trống, nhưng bạn có thể biến nó thành tủ chứa đồ, kệ sách hoặc góc làm việc nhỏ, giúp tận dụng tối đa diện tích. Ngoài ra,
- Phân chia không gian linh hoạt: Tùy theo diện tích và nhu cầu sử dụng, gác lửng có thể được bố trí thành phòng ngủ, phòng làm việc, phòng chơi cho trẻ em hoặc thậm chí là một thư viện nhỏ.

Nhà gác lửng 3 phòng ngủ tận dụng góc khuất cầu thang để tivi (Nguồn: Internet)
Nhà gác lửng 3 phòng ngủ tiết kiệm chi phí
So với các loại hình nhà ở khác, nhà cấp 4 gác lửng có chi phí xây dựng và bảo trì thấp hơn đáng kể. Thiết kế đơn giản, ít tầng giúp giảm lượng vật liệu xây dựng và nhân công. Bên cạnh đó, việc tận dụng tối đa ánh sáng tự nhiên qua các cửa sổ lớn không chỉ giúp tiết kiệm năng lượng chiếu sáng mà còn tạo nên không gian sống thoáng đãng và gần gũi với thiên nhiên.
Thiết kế đa dạng
Với thiết kế đơn giản nhưng không kém phần hiện đại, nhà gác lửng 3 phòng ngủ dễ dàng kết hợp với nhiều phong cách nội thất khác nhau. Từ phong cách tối giản, hiện đại cho đến phong cách truyền thống, cổ điển, ngôi nhà đều có thể thể hiện được nét đẹp riêng biệt.
- Phong cách hiện đại: Tận dụng ánh sáng tự nhiên, sử dụng nội thất đơn giản với tông màu trung tính, tạo không gian thoáng đãng và tinh tế.
- Phong cách cổ điển: Sử dụng vật liệu truyền thống như gỗ và gạch, kết hợp với nội thất mang hơi hướng cổ điển, tạo nên không gian sang trọng và ấm cúng.
- Phong cách tối giản: Tập trung vào các đường nét đơn giản, màu sắc nhã nhặn, tạo cảm giác thoáng đãng và rộng rãi.
Thích hợp với nhiều đối tượng
Nhà gác lửng 3 phòng ngủ là lựa chọn lý tưởng cho nhiều đối tượng, nhờ những ưu điểm sau:
- Sinh viên: Cung cấp không gian sống độc lập, tiện nghi và tiết kiệm chi phí.
- Người độc thân: Thiết kế nhỏ gọn, đáp ứng đầy đủ nhu cầu sinh hoạt cá nhân.
- Gia đình có người cao tuổi: Gác lửng có thể được bố trí làm phòng ngủ cho người lớn tuổi, đảm bảo sự riêng tư và an toàn.

Mẫu nhà gác lửng 3 phòng ngủ hiện đại với nhiều ưu điểm nổi bật (Nguồn: Internet)
>> Xem thêm:
- 45+ Mẫu nhà gác lửng 2 phòng ngủ hiện đại, đẹp, đầy đủ tiện nghi
- 99+ Mẫu nhà cấp 4 đẹp 5x20 hiện đại, chi phí thấp, xu hướng
Top các mẫu nhà gác lửng 3 phòng ngủ đẹp, ấn tượng, được yêu thích nhất 2026
Sau đây mời các gia chủ và các anh em thầu thợ tham khảo những mẫu nhà gác lửng dự đoán sẽ làm mưa làm gió trong thời gian tới bên dưới đây nhé!
1. Mẫu nhà cấp 4 gác lửng 3 phòng ngủ 4x15
Mẫu nhà cấp 4 gác lửng 3 phòng ngủ kích thước 4x15m là lựa chọn lý tưởng cho những gia đình sở hữu diện tích đất vừa phải. Thiết kế này không chỉ tối ưu hóa không gian sống mà còn đảm bảo đầy đủ tiện nghi cho các thành viên trong gia đình. Phần gác lửng được bố trí hợp lý, giúp mở rộng diện tích sử dụng mà không làm tăng chi phí xây dựng đáng kể. Việc tận dụng ánh sáng tự nhiên và thông gió hiệu quả mang lại không gian sống thoải mái và thoáng đãng.

Mẫu nhà cấp 4 gác lửng 3 phòng ngủ 4x15 hiện đại, giá rẻ từ 300 triệu (Nguồn: Internet)
2. Mẫu nhà gác lửng 3 phòng ngủ 5x12
Mẫu nhà cấp 4 gác lửng 3 phòng ngủ 5x12m mang lại sự đa dạng trong thiết kế, từ phong cách truyền thống đến hiện đại. Với diện tích này, bạn có thể bố trí 3 phòng ngủ, phòng khách, bếp ăn và phòng thờ một cách tiện nghi. Đặc biệt, phần gác lửng thường được thiết kế theo phong cách mở, giúp tận dụng tối đa ánh sáng tự nhiên, tạo cảm giác thoáng đãng và rộng rãi cho ngôi nhà.

Mẫu nhà cấp 4 gác lửng 3 phòng ngủ 5x12 tiện nghi, đáp ứng đầy đủ công năng (Nguồn: Internet)
3. Mẫu nhà cấp 4 gác lửng 3 phòng ngủ 5x15
Mẫu nhà cấp 4 có gác lửng 3 phòng ngủ 5x15m mang lại nhiều ưu điểm vượt trội. Thiết kế này giúp tăng diện tích sử dụng, tạo không gian sống thoải mái cho gia đình. Gác lửng được bố trí linh hoạt, có thể sử dụng làm phòng ngủ, phòng thờ, phòng tập gym hoặc không gian làm việc, đáp ứng đa dạng nhu cầu của các thành viên.

Mẫu nhà cấp 4 gác lửng 3 phòng ngủ 5x15 hiện đại, đẹp nhất 2026 (Nguồn: Internet)
4. Mẫu nhà gác lửng 3 phòng ngủ 5x20
Mẫu nhà cấp 4 có gác lửng 3 phòng ngủ 5x20m mang lại không gian rộng rãi, cho phép bố trí các phòng chức năng một cách khoa học và hợp lý. Phần gác lửng thường được tận dụng để làm phòng ngủ cho các thành viên trong gia đình, hoặc bố trí thành phòng làm việc, phòng đọc sách, tùy theo nhu cầu sử dụng. Thiết kế mặt tiền thường nhấn mạnh sự đơn giản và hiện đại, với những đường nét tinh tế, tạo điểm nhấn cho ngôi nhà.

Mẫu nhà cấp 4 gác lửng 3 phòng ngủ 5x20 giá 500 triệu (Nguồn: Internet)
5. Mẫu nhà gác lửng 3 phòng ngủ 200 triệu
Xây dựng một ngôi nhà cấp 4 gác lửng 200 triệu có 3 phòng ngủ là một lựa chọn thực tế và tiết kiệm cho các gia đình trẻ hoặc có thu nhập trung bình. Để hiện thực hóa điều này, bạn cần lập kế hoạch chi tiết và tìm hiểu kỹ lưỡng các giải pháp tối ưu. Bạn có thể sử dụng vật liệu xây dựng giá thành phải chăng như gạch nung truyền thống, tôn lợp, và tận dụng các thiết bị nội thất thông minh, đa năng. Thiết kế nhà gác lửng giúp tận dụng không gian triệt để, tạo thêm phòng ngủ mà không làm tăng diện tích sàn, từ đó giảm đáng kể chi phí nhân công và vật liệu. Với việc chọn lọc nguyên vật liệu khéo léo và bố trí không gian hợp lý, bạn hoàn toàn có thể sở hữu một tổ ấm đẹp, tiện nghi và đầy đủ công năng trong tầm tài chính cho phép.

Mẫu nhà gác lửng 3 phòng ngủ 200 triệu đẹp với nội thất đa năng, thông minh (Nguồn: Internet)
>> Xem thêm:
- Bảng giá xây nhà cấp 4 trọn gói 200 triệu chi tiết
- Mẫu nhà container 200 triệu đẹp và độc đáo nhất 2026
- Làm nhà lắp ghép 200 triệu thiết kế đẹp, hiện đại, đơn giản
6. Mẫu nhà gác lửng 3 phòng ngủ 300 triệu
Mẫu nhà gác lửng 3 phòng ngủ 300 triệu là lựa chọn lý tưởng cho những gia đình muốn sở hữu không gian sống tiện nghi mà không cần đầu tư quá nhiều. Với thiết kế gác lửng thông minh, ngôi nhà vừa tận dụng được diện tích xây dựng, vừa tạo thêm không gian sinh hoạt thoải mái. Ba phòng ngủ được bố trí hợp lý, mang đến sự riêng tư cho từng thành viên trong gia đình. Đặc biệt, chi phí xây dựng khoảng 300 triệu giúp giảm bớt gánh nặng tài chính nhưng vẫn đảm bảo chất lượng và thẩm mỹ. Mẫu nhà này không chỉ phù hợp với túi tiền mà còn đáp ứng nhu cầu về không gian sống tiện nghi và hiện đại.

Mẫu nhà cấp 4 gác lửng 3 phòng ngủ giá 300 triệu đẹp, tiện nghi (Nguồn: Internet)

Mẫu nhà gác lửng 3 phòng ngủ 300 triệu thiết kế đơn giản (Nguồn: Internet)

Bản vẽ nhà cấp 4 gác lửng 3 phòng ngủ (Nguồn: Internet)

Bản vẽ thiết kế nhà gác lửng 3 phòng ngủ chi tiết (Nguồn: Internet)
>> Xem thêm:
- Mẫu nhà cấp 4 đẹp giá rẻ 300 triệu được ưa chuộng nhất hiện nay
- 100+ Mẫu nhà cấp 4 3 phòng ngủ 300 triệu đẹp nhất 2026
- 40+ Mẫu nhà cấp 4 mái Nhật đẹp, đơn giản, hiện đại 2026
7. Mẫu nhà gác lửng 3 phòng ngủ 400 triệu
Mẫu nhà gác lửng 3 phòng ngủ 400 triệu là giải pháp hoàn hảo cho những không gian sống hạn chế. Với thiết kế gác lửng thông minh, bạn có thể tận dụng tối đa diện tích, tạo thêm nhiều không gian sinh hoạt đa năng như phòng làm việc, phòng đọc sách hay phòng chơi cho trẻ. Không gian sống trở nên linh hoạt hơn, đáp ứng mọi nhu cầu của gia đình.

Mẫu nhà gác lửng 3 phòng ngủ đẹp, tiện nghi với tấm lót sàn DURAflex (Nguồn: Internet)

Mẫu nhà gác lửng 3 phòng ngủ 400 triệu ấm cúng với tấm xi măng giả gỗ ốp sàn, tường, vách (Nguồn: Internet)

Mẫu mặt tiền nhà gác lửng 3 phòng ngủ 400 triệu đẹp với thiết kế tinh tế (Nguồn: Internet)
>> Xem thêm:
- 15+ Mẫu nhà tiền chế 1 mái đẹp, tiện nghi, tiết kiệm chi phí
- Nhà thép tiền chế là gì? Báo giá & mẫu nhà tiền chế mới nhất 2026
- 49+ Mẫu nhà cấp 4 4 phòng ngủ 400 triệu đẹp, hiện đại nhất
8. Mẫu nhà gác lửng 3 phòng ngủ 500 triệu
Mẫu nhà gác lửng 3 phòng ngủ 500 triệu mang đến sự đa dạng về kiểu dáng và phong cách thiết kế, từ hiện đại, tối giản đến truyền thống, ấm cúng. Bạn có thể lựa chọn những mẫu nhà cấp 4 giá 500 triệu gác lửng có sân vườn nhỏ, ban công thoáng mát để tận hưởng không gian xanh mát ngay tại ngôi nhà của mình. Ngoài ra, việc bố trí các phòng chức năng trong nhà cấp 4 3 phòng ngủ 500 triệu có gác lửng cũng rất linh hoạt, giúp bạn dễ dàng sắp xếp và tạo nên một không gian sống phù hợp với nhu cầu và sở thích của gia đình.

Mẫu nhà cấp 4 gác lửng 3 phòng ngủ 500 triệu hiện đại (Nguồn: Internet)

Xây nhà 500 triệu ở nông thôn có gác lửng 3 phòng ngủ tối giản (Nguồn: Internet)

Mẫu nhà gác lửng 3 phòng ngủ 500 triệu mái tôn đẹp, tối ưu chi phí (Nguồn: Internet)

Mẫu nhà gác lửng 3 phòng ngủ 500 triệu mái Thái hiện đại, tiện nghi (Nguồn: Internet)

Mẫu nhà gác lửng 3 phòng ngủ 500 triệu mái bằng đơn giản, hiện đại, thoáng đãng (Nguồn: Internet)
>> Xem thêm:
- 100 Mẫu nhà cấp 4 đẹp giá rẻ 100 triệu đẹp, đơn giản nhất 2026
- 35+ Mẫu nhà cấp 4 mái Nhật 3 phòng ngủ hiện đại, đẹp nhất 2026
- Xây nhà cấp 4 khoảng 150 triệu TRỌN GÓI đẹp, tiện nghi
9. Mẫu nhà gác lửng 3 phòng ngủ 600 triệu
Với số tiền này, bạn có thể lựa chọn các vật liệu xây dựng chất lượng như gạch ốp, tấm xi măng lát sàn DURAflex, sơn chịu thấm và hệ thống cửa nhôm kính cách âm tốt, giúp ngôi nhà trở nên sang trọng và bền vững hơn. Thiết kế gác lửng là điểm nhấn quan trọng, tận dụng triệt để diện tích chiều cao của ngôi nhà, giúp mở rộng không gian sinh hoạt mà vẫn giữ được sự thông thoáng.
Tầng trệt thường được bố trí gồm phòng khách, bếp và một phòng ngủ, tạo sự liên kết chặt chẽ giữa các khu vực chức năng, đồng thời thuận tiện cho sinh hoạt chung của gia đình. Phần gác lửng sẽ là nơi bố trí thêm 2 phòng ngủ, đảm bảo sự riêng tư, yên tĩnh, thích hợp cho các thành viên trong gia đình. Ngoài ra, gác lửng cũng có thể linh hoạt sử dụng làm phòng làm việc hoặc phòng thờ, tùy theo nhu cầu.

Mẫu nhà gác lửng 3 phòng ngủ 600 triệu sang trọng (Nguồn: Internet)

Mẫu nhà gác lửng 3 phòng ngủ 600 triệu hiện đại, đẳng cấp (Nguồn: Internet)
>> Xem thêm: 60+ Mẫu nhà cấp 4 2 phòng ngủ đẹp, đơn giản, tiết kiệm chi phí
10. Nhà gác lửng 3 phòng ngủ 700 triệu
Mẫu nhà gác lửng 3 phòng ngủ với mức đầu tư này thường có diện tích vừa phải, thiết kế thông minh, tận dụng tối đa ánh sáng tự nhiên. Bạn có thể thoải mái bố trí phòng khách, bếp ăn, 3 phòng ngủ và các không gian chức năng khác một cách khoa học.

Mẫu nhà gác lửng 3 phòng ngủ 700 triệu hiện đại, đầy đủ tiện nghi (Nguồn: Internet)

Mẫu nhà gác lửng 3 phòng ngủ 700 triệu đẹp nhất 2026 (Nguồn: Internet)
>> >> Đọc thêm các mẫu nhà khác:
- 30+ Mẫu nhà 2 tầng đẹp giá 700 triệu hiện đại, ấn tượng
- 40+ Mẫu nhà 2 tầng đẹp giá 1 tỷ độc đáo, đầy đủ tiện nghi
- 150+ Mẫu nhà 1 trệt 1 lầu 5x20 đẹp, xu hướng, mới nhất 2026
11. Mẫu nhà ống gác lửng 3 phòng ngủ
Mẫu nhà ống gác lửng 3 phòng ngủ là giải pháp lý tưởng cho những mảnh đất có mặt tiền hẹp. Thiết kế này giúp tận dụng không gian một cách hiệu quả, đáp ứng đầy đủ nhu cầu sinh hoạt của gia đình. Phần gác lửng thường được bố trí làm phòng ngủ hoặc không gian sinh hoạt chung, góp phần tăng diện tích sử dụng mà không cần mở rộng diện tích xây dựng.

Mẫu nhà ống gác lửng 3 phòng ngủ thiết kế hiện đại, tối ưu không gian sống (Nguồn: Internet)
>> Xem thêm:
- 99+ Mẫu mặt tiền nhà ống đẹp, thiết kế hiện đại, xu hướng 2026
- Top 60+ mẫu nhà ống 1 tầng đẹp 5x20 tiện nghi, giá rẻ 2026
- 101+ Mẫu nhà ống 3 tầng đẹp, hiện đại, sang trọng nhất 2026
12. Mẫu nhà gác lửng 3 phòng ngủ ở nông thôn
Mẫu nhà gác lửng 3 phòng ngủ ở nông thôn là lựa chọn lý tưởng cho các gia đình mong muốn một không gian sống tiện nghi, hiện đại mà vẫn gần gũi với thiên nhiên. Với đặc trưng khu vực nông thôn có diện tích đất rộng rãi, việc xây dựng nhà gác lửng sẽ giúp tối ưu không gian, tạo ra một không gian sống thoáng đãng, thoải mái mà vẫn giữ được sự riêng tư cho từng phòng ngủ. Mẫu nhà cấp 4 nông thôn có gác lửng này phù hợp với nhu cầu sinh hoạt của các gia đình nhiều thế hệ, vừa đảm bảo sự kết nối giữa các thành viên, vừa mang đến sự tiện lợi trong sử dụng.

Mẫu nhà gác lửng 3 phòng ngủ ở nông thôn đầy đủ tiện nghi (Nguồn: Internet)
>> Tham khảo thêm:
- 68+ Mẫu nhà cấp 4 nông thôn 3 phòng ngủ giá rẻ, đẹp, tiện nghi
- Top mẫu nhà cấp 4 nông thôn 250 triệu đơn giản, đẹp nhất 2026
- 30+ Mẫu nhà 2 tầng đẹp ở nông thôn hiện đại, được ưa chuộng 2026
13. Mẫu nhà gác lửng 3 phòng ngủ hiện đại
Mẫu nhà gác lửng 3 phòng ngủ hiện đại thường sử dụng các đường nét tối giản, vật liệu kính, thép và gỗ để tạo nên mẫu nhà đẹp, sang trọng và tinh tế. Tầng trệt của mẫu nhà này thường được thiết kế mở với phòng khách liền kề bếp và được ngăn cách bằng vách ngăn, giúp tăng cường sự kết nối giữa các khu vực sinh hoạt. Nội thất được bố trí theo xu hướng tối giản nhưng vẫn đảm bảo đầy đủ tiện nghi, với những mảng màu trung tính hoặc tông màu gỗ nhẹ nhàng, mang lại sự ấm cúng và hài hòa.

Mẫu nhà gác lửng 3 phòng ngủ hiện đại với thiết kế phòng khách liền kề phòng bếp (Nguồn: Internet)
14. Mẫu nhà gác lửng 3 phòng ngủ phong cách tối giản
Mẫu nhà gác lửng 3 phòng ngủ phong cách tối giản là lựa chọn phù hợp cho gia đình trẻ yêu thích không gian sống gọn gàng, tinh tế và tiết kiệm chi phí xây dựng. Thiết kế này thường bố trí tầng trệt gồm phòng khách, bếp và một phòng ngủ, trong khi gác lửng sắp xếp thêm hai phòng ngủ cùng khu vệ sinh chung. Nhờ cách phân chia công năng rõ ràng, ngôi nhà vẫn đảm bảo sự riêng tư cho từng thành viên mà không làm mất đi cảm giác thông thoáng.
Phong cách tối giản tập trung vào đường nét thẳng, hình khối vuông vức và bảng màu trung tính như trắng, be hoặc xám nhạt. Nội thất được chọn lọc kỹ lưỡng, ưu tiên thiết kế đa năng để tối ưu diện tích sử dụng. Bên cạnh đó, cửa kính lớn và giếng trời thường được ứng dụng nhằm tăng cường ánh sáng tự nhiên, giúp không gian luôn sáng sủa và tiết kiệm điện năng. Tổng thể ngôi nhà mang lại cảm giác nhẹ nhàng, hiện đại nhưng vẫn đầy đủ tiện nghi cho sinh hoạt hằng ngày.

Mẫu nhà cấp 4 gác lửng 3 phòng ngủ tối giản với vách ngăn cầu thang tam cấp độc đáo (Nguồn: Internet)
15. Mẫu nhà cấp 4 gác lửng 3 phòng ngủ có 1 phòng thờ
Phòng thờ thường được đặt ở vị trí trang trọng, có thể ở tầng trệt hoặc gác lửng, tùy thuộc vào không gian tổng thể của ngôi nhà. Việc thiết kế phòng thờ cần chú trọng đến yếu tố yên tĩnh và trang nghiêm, thường sử dụng bàn thờ bằng gỗ tự nhiên và các chi tiết trang trí phù hợp, thể hiện sự tôn kính đối với tổ tiên. Cửa sổ lớn có thể được bố trí ở phòng thờ để đón ánh sáng tự nhiên, đồng thời tạo không khí thoáng đãng, giúp không gian thêm phần linh thiêng.

Mẫu nhà gác lửng 3 phòng ngủ có phòng thờ trang nghiêm (Nguồn: Internet)

Mẫu nhà cấp 4 gác lửng 3 phòng ngủ có 1 phòng thờ hợp phong thủy (Nguồn: Internet)
>> Đọc thêm:
- 30+ Mẫu nhà lắp ghép 50 triệu trọn gói và chất lượng
- 50+ Mẫu nhà lắp ghép 140 triệu đẹp, đơn giản, hiện đại
16. Mẫu nhà gác lửng 3 phòng ngủ có sân thượng
Mẫu nhà gác lửng 3 phòng ngủ có sân thượng là sự kết hợp hoàn hảo giữa không gian sống hiện đại và tiện nghi, mang đến cho các gia đình một môi trường sống thoải mái, sáng tạo và gần gũi với thiên nhiên. Thiết kế này không chỉ tối ưu hóa diện tích mà còn tạo ra các không gian thư giãn ngoài trời, phù hợp với lối sống hiện đại.
Sân thượng là điểm nhấn quan trọng trong mẫu nhà này. Không gian này có thể được thiết kế với cây xanh, ghế ngồi, và bàn trà, tạo ra một khu vực thư giãn lý tưởng cho các thành viên trong gia đình. Sân thượng cũng có thể được sử dụng để tổ chức các buổi tiệc ngoài trời, là nơi tụ tập bạn bè và gia đình. Việc bố trí giàn hoa hoặc cây xanh sẽ tạo cảm giác gần gũi với thiên nhiên, giúp không gian trở nên sinh động và thoải mái hơn.

Mẫu nhà gác lửng 3 phòng ngủ có sân thượng với tấm bê tông nhẹ lát sàn ngoài trời (Nguồn: Internet)
>> Đọc thêm:
- 10+ Cách chống nóng sân thượng hiệu quả và tiết kiệm chi phí nhất
- 40+ Mẫu nhà lắp ghép 500 triệu đẹp, hiện đại, sang trọng 2026
- Nhà lắp ghép thông minh đẹp, hiện đại, trào lưu hiện nay
17. Mẫu nhà gác lửng 3 phòng ngủ có sân vườn
Mẫu nhà gác lửng 3 phòng ngủ có thiết kế sân vườn mang lại không gian sống gần gũi với thiên nhiên. Thiết kế này thường bao gồm một khoảng sân vườn rộng và một nhà chòi sân vườn - nơi gia đình có thể tổ chức các buổi tiệc ngoài trời hoặc trồng cây xanh, hoa cỏ. Tầng trệt thường bố trí phòng khách, bếp và một phòng ngủ, trong khi gác lửng dành cho hai phòng ngủ riêng tư. Sự kết hợp này không chỉ tạo cảm giác thoải mái mà còn giúp cải thiện chất lượng không khí trong nhà, mang lại sức sống cho ngôi nhà vườn nhỏ đẹp này.

Mẫu nhà gác lửng 3 phòng ngủ có sân vườn rộng rãi (Nguồn: Internet)
>> Xem thêm:
- 100 Mẫu biệt thự nhà vườn đẹp, độc đáo, đa dạng kiểu dáng
- 50+ Mẫu biệt thự tân cổ điển 2 tầng 1 tỷ đẹp, sang trọng
- Top 20 mẫu nhà lắp ghép 150 triệu rẻ đẹp, sang trọng hiện nay
18. Mẫu nhà gác lửng 3 phòng ngủ chữ L
Mẫu nhà gác lửng 3 phòng ngủ hình chữ L là một lựa chọn thông minh cho những lô đất có diện tích hạn chế. Thiết kế này tối ưu hóa không gian, tạo ra các góc sống thoải mái cho các phòng ngủ và không gian sinh hoạt chung. Phòng khách thường được đặt ở phần dài của nhà chữ L, liền kề với bếp ăn, trong khi các phòng ngủ được sắp xếp ở phần ngắn, đảm bảo sự riêng tư. Mẫu nhà cấp 4 chữ L 3 phòng ngủ có gác lửng cũng giúp đón ánh sáng tự nhiên tốt hơn, tạo nên không gian thoáng đãng.

Mẫu nhà cấp 4 chữ L có gác lửng, 3 phòng ngủ, giá 500 triệu (Nguồn: Internet)

Mẫu nhà cấp 4 gác lửng 3 phòng ngủ chữ L mái Thái hiện đại, tiện nghi (Nguồn: Internet)
Tầng trệt được tối ưu hóa theo hình chữ L đặc trưng, tạo ra khoảng sảnh đón thoáng đãng và giúp đón ánh sáng tự nhiên tốt hơn. Phòng khách và khu vực bếp ăn được kết nối liền mạch, tạo nên một không gian sinh hoạt chung rộng rãi, ấm cúng cho cả gia đình. Điểm nhấn là một phòng ngủ chính được đặt kín đáo phía sau với nhà vệ sinh riêng, đảm bảo sự riêng tư tuyệt đối mà vẫn thuận tiện cho việc di chuyển ở tầng thấp nhất.
Tầng lửng tận dụng ưu thế của mái thái để tạo ra khoảng thông tầng cao ráo, giúp đối lưu không khí và mang lại tầm nhìn khoáng đạt xuống phòng khách. Khu vực này được phân chia khoa học với phòng thờ trang trọng đặt ở phía trước, cùng hai phòng ngủ phụ yên tĩnh dành cho các thành viên khác. Đây là giải pháp kiến trúc thông minh, biến mẫu nhà cấp 4 trở nên sang trọng và đa năng, đáp ứng trọn vẹn nhu cầu của gia đình từ 4-5 thành viên.

Bản vẽ công năng nhà gác lửng 3 phòng chữ L gồm tầng trệt và tầng lửng đầy đủ tiện nghi (Nguồn: Internet)
>> Có thể bạn quan tâm:
- Phương pháp cải tạo nhà cấp 4 chữ L đẹp, hiện đại, tiết kiệm chi phí
- 100+ Mẫu nhà cấp 4 chữ L mái tôn đẹp, đơn giản, giá rẻ 2026
- 50+ Mẫu nhà 2 tầng chữ L 100m2 đẹp, hiện đại, tiện nghi 2026
19. Mẫu nhà gác lửng 3 phòng ngủ mái tôn
Mẫu nhà gác lửng 3 phòng ngủ mái tôn là sự kết hợp giữa tính hiện đại và tính thực dụng. Mái tôn nhẹ và bền, giúp giảm chi phí xây dựng và bảo trì. Thiết kế này thường có không gian mở với phòng khách và bếp liên thông, tạo cảm giác rộng rãi. Phần gác lửng sẽ bố trí hai phòng ngủ với cửa sổ lớn để đón ánh sáng tự nhiên. Mái tôn còn có khả năng thoát nước tốt, giúp ngôi nhà an toàn trong mùa mưa. Tuy nhiên, vào mùa hè thì không gian trong nhà sẽ trở nên nóng hơn, vì vậy các bạn có thể tham khảo các biện pháp chống nóng tường nhà như: trồng cây xanh, lợp mái bằng tấm cemboard,...

Mẫu nhà gác lửng 3 phòng ngủ mái tôn đẹp (Nguồn: Internet)
>> Đọc thêm:
- 55+ Mẫu nhà cấp 4 mái tôn dưới 100 triệu đẹp, đơn giản, tiện nghi
- 45+ Mẫu nhà cấp 4 đẹp 5x20 mái tôn được ưa chuộng nhất 2025
- 20+ Mẫu nhà tiền chế 2 phòng ngủ đơn giản, tiện nghi, chi phí thấp
20. Mẫu nhà gác lửng 3 phòng ngủ mái ngói
Mẫu nhà gác lửng 3 phòng ngủ mái ngói mang đến vẻ đẹp truyền thống và sang trọng. Mái ngói không chỉ tạo hình dáng bắt mắt mà còn có khả năng cách nhiệt tốt, giữ cho ngôi nhà luôn mát mẻ vào mùa hè và ấm áp vào mùa đông. Tầng trệt thường được thiết kế gồm phòng khách, bếp và một phòng ngủ, trong khi gác lửng dành cho hai phòng ngủ riêng tư. Sự kết hợp giữa nhà mái ngói và không gian sống thông thoáng tạo cảm giác ấm cúng, thích hợp cho những gia đình yêu thích sự truyền thống.

Mẫu nhà gác lửng 3 phòng ngủ 500 triệu mái ngói (Nguồn: Internet)
21. Mẫu nhà gác lửng 3 phòng ngủ mái Thái
Mẫu nhà gác lửng 3 phòng ngủ mái Thái được ưa chuộng nhờ thiết kế hiện đại và sang trọng. Nhà mái Thái có độ dốc vừa phải, giúp thoát nước tốt và tạo vẻ đẹp hài hòa cho ngôi nhà. Tầng trệt thường bao gồm phòng khách, bếp và một phòng ngủ, trong khi gác lửng bố trí hai phòng ngủ, tạo không gian riêng tư cho các thành viên trong gia đình. Vật liệu xây dựng thường được chọn lựa kỹ lưỡng, đảm bảo tính bền vững và thẩm mỹ cao, tạo nên tổ ấm lý tưởng cho gia đình.

Mẫu nhà cấp 4 mái Thái 3 phòng ngủ có gác lửng được ưa chuộng nhất (Nguồn: Internet)

Mẫu nhà cấp 4 gác lửng 3 phòng ngủ với thiết kế mái Thái giật cấp sang trọng (Nguồn: Internet)
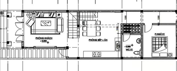
Về công năng, mặt bằng tầng trệt nhà gác lửng 3 phòng ngủ được bố trí khoa học và đầy đủ tiện ích. Không gian gồm phòng khách, phòng bếp kết hợp khu vực ăn uống, một phòng ngủ và một phòng vệ sinh chung. Phòng khách đặt ngay sát cửa chính nhằm tạo sự thuận tiện trong sinh hoạt và đón tiếp khách. Tiếp nối phía trong là khu bếp và phòng ăn được thiết kế thông thoáng, đảm bảo sự lưu thông không khí và yếu tố phong thủy. Cuối nhà là một phòng ngủ nhỏ phù hợp cho người lớn tuổi hoặc khách lưu trú, cùng với một phòng vệ sinh chung được sắp xếp hợp lý để tối ưu diện tích sử dụng.

Mẫu bản vẽ nhà cấp 4 gác lửng 3 phòng ngủ đầy đủ công năng ở tầng trệt (Nguồn: Internet)
Khu vực tầng lửng của nhà gác lửng 3 phòng ngủ mái Thái cũng được tận dụng hiệu quả để mở rộng không gian sinh hoạt riêng tư. Tại đây, kiến trúc sư bố trí hai phòng ngủ và một phòng vệ sinh chung nhằm đáp ứng nhu cầu nghỉ ngơi của các thành viên trong gia đình. Phòng thờ được thiết kế hướng ra mặt tiền, đảm bảo sự trang nghiêm, thông thoáng và phù hợp với yếu tố phong thủy. Nhờ cách sắp xếp hợp lý, mẫu nhà này không chỉ đảm bảo công năng đầy đủ mà còn tạo cảm giác rộng rãi, tiện nghi cho gia đình sinh sống lâu dài.

Mặt bằng tầng lửng của nhà gác lửng 3 phòng ngủ mái Thái được tận dụng hiệu quả để mở rộng không gian sinh hoạt (Nguồn: Internet)
>> Các mẫu nhà khác:
- Tổng hợp 50+ mẫu nhà cấp 4 mái Thái đơn giản, hiện đại, đẹp nhất 2026
- 35 Mẫu nhà mái Thái 2 tầng đẹp, đơn giản, hiện đại, xu hướng 2026
- 50+ Mẫu nhà cấp 4 mái Thái 5x20 đẹp, hiện đại, chi phí thấp
22. Mẫu nhà gác lửng 3 phòng ngủ mái Nhật
Mẫu nhà mái Nhật gác lửng 3 phòng ngủ nổi bật với thiết kế tinh tế và sự tối giản. Mái Nhật thường có độ dốc nhẹ, tạo cảm giác thanh thoát và gần gũi với thiên nhiên. Tầng trệt bao gồm phòng khách, bếp và một phòng ngủ, trong khi gác lửng bố trí hai phòng ngủ với cửa sổ lớn, tối ưu hóa ánh sáng tự nhiên. Kiến trúc này không chỉ mang đến không gian sống thoải mái mà còn phản ánh phong cách sống hiện đại, hòa hợp với môi trường xung quanh.

Mẫu nhà vườn đẹp có gác lửng 3 phòng ngủ mái Nhật hiện đại, sang trọng (Nguồn: Internet)
>> Xem thêm:
- 35+ Mẫu nhà cấp 4 mái Nhật 3 phòng ngủ hiện đại, đẹp nhất 2026
- 50+ Mẫu nhà cấp 4 mái Nhật 4 phòng ngủ đẹp, hiện đại, tiện nghi
- 100+ Mẫu nhà biệt thự 2 tầng mái Nhật đẹp, xu hướng 2026
23. Mẫu nhà gác lửng 3 phòng ngủ mái bằng
Mẫu nhà gác lửng 3 phòng ngủ mái bằng mang đến sự hiện đại và tiện nghi. Mái bằng giúp tối ưu hóa diện tích sử dụng, tạo không gian cho các hoạt động trên mái như trồng cây xanh hoặc làm khu vực nghỉ ngơi. Tầng trệt thường bố trí phòng khách, bếp, phòng vệ sinh và 2 phòng ngủ, trong khi gác lửng gồm 1 phòng ngủ và 1 phòng thờ. Với thiết kế tối giản và vật liệu xây dựng chất lượng, ngôi nhà mang lại cảm giác rộng rãi và thoáng đãng, phù hợp cho những gia đình trẻ năng động.

Mẫu nhà gác lửng 3 phòng ngủ mái bằng đẹp với tấm cemboard ốp tường trang trí ngoài trời (Nguồn: Internet)

Mẫu nhà cấp 4 mái bằng chữ L có gác lửng 3 phòng ngủ ấn tượng, độc đạo (Nguồn: Ảnh được tạo bởi AI)
>> Xem thêm:
- 59+ Mẫu nhà cấp 4 mái bằng đẹp, hiện đại, tiết kiệm chi phí
- 45+ mẫu thiết kế nhà 1 trệt 1 lầu đẹp, hiện đại, mới nhất 2026
- 45+ Mẫu nhà ống 1 tầng nông thôn đẹp, hiện đại, giá rẻ 2026
24. Mẫu nhà gác lửng 3 phòng ngủ mái lệch
Mẫu nhà gác lửng 3 phòng ngủ mái lệch tạo nên vẻ đẹp độc đáo và hiện đại cho ngôi nhà. Thiết kế mái lệch không chỉ giúp tối ưu hóa không gian sử dụng mà còn tạo ra một điểm nhấn thú vị cho kiến trúc tổng thể. Tầng trệt thường được bố trí với không gian mở gồm phòng khách, bếp và 2 phòng ngủ, trong khi gác lửng bố trí 1 phòng ngủ và 1 phòng làm việc với thiết kế sáng tạo. Kiến trúc mái lệch giúp tăng cường khả năng thoát nước, đồng thời mang lại cảm giác thông thoáng cho ngôi nhà, rất phù hợp cho những gia đình trẻ.

Mẫu nhà gác lửng 3 phòng ngủ mái lệch độc đáo (Nguồn: Internet)
>> Một số mẫu nhà khác:
- 20+ Mẫu nhà tiền chế dưới 100 triệu đẹp, hiện đại
- 20+ mẫu nhà container giá rẻ với thiết kế độc đáo
- Mẫu nhà cấp 4 có gác lửng 5x15
25. Mẫu nhà gác lửng 3 phòng ngủ mái dốc có sân vườn
Mẫu nhà cấp 4 gác lửng 3 phòng ngủ mái dốc có sân vườn gây ấn tượng mạnh nhờ kiến trúc mặt tiền hiện đại và hài hòa. Tổng thể ngôi nhà sử dụng tông trắng làm chủ đạo, kết hợp cùng màu gỗ tự nhiên, từ đó tạo nên vẻ đẹp tinh khôi nhưng vẫn ấm áp và gần gũi. Các đường nét thiết kế được xử lý gọn gàng, mạch lạc, giúp công trình toát lên sự tinh tế và phù hợp với xu hướng nhà ở hiện nay.

Mẫu nhà gác lửng 3 phòng ngủ mái dốc có sân vườn hiện đại và ấm áp (Nguồn: Internet)
Không gian sân vườn xanh mát bao quanh nhà mang đến môi trường sống trong lành và thư thái cho cả gia đình. Khoảng sân rộng không chỉ tăng tính thẩm mỹ mà còn giúp lưu thông không khí, cải thiện ánh sáng tự nhiên cho khu vực bên trong. Phần mái dốc được thiết kế theo phong cách mái Thái, nhờ đó tổng thể công trình trở nên cao ráo, thanh thoát và nổi bật hơn. Cửa chính sử dụng kính cường lực chắc chắn, vừa đảm bảo độ bền, vừa tạo cảm giác mở rộng không gian và tăng khả năng đón sáng hiệu quả.

Mặt bằng công năng tầng trệt của mẫu nhà gác lửng 3 phòng ngủ mái dốc có sân vườn (Nguồn: Internet)
Về công năng, tầng trệt được bố trí khoa học để đáp ứng nhu cầu sinh hoạt chung. Phòng khách được thiết kế liền kề phòng bếp, tạo sự kết nối thuận tiện giữa các thành viên trong gia đình. Cầu thang thông tầng đóng vai trò phân chia không gian tương đối mà không làm mất đi sự thông thoáng. Phía trong là một phòng ngủ được sắp xếp hợp lý, trong khi nhà vệ sinh chung đặt ở vị trí trung tâm giữa phòng ngủ và khu vực bếp, giúp việc sử dụng trở nên thuận tiện.

Mặt bằng công năng tầng lửng của mẫu nhà gác lửng 3 phòng ngủ mái dốc có sân vườn (Nguồn: Internet)
Khu vực gác lửng được thiết kế cân đối nhằm tối ưu diện tích sử dụng. Tại đây, hai phòng ngủ có diện tích vừa phải được bố trí hợp lý để đảm bảo sự riêng tư và thoải mái. Nhà vệ sinh chung đặt ở cuối nhà giúp tối ưu lối di chuyển và không ảnh hưởng đến không gian nghỉ ngơi. Phần thông sảnh tầng lửng được tận dụng làm phòng thờ nhỏ, tạo nên không gian trang nghiêm và yên tĩnh, phù hợp với nhu cầu sinh hoạt tâm linh của gia đình.
Tổng thể, mẫu nhà gác lửng 3 phòng ngủ mái dốc có sân vườn không chỉ đáp ứng tốt công năng sử dụng mà còn mang lại giá trị thẩm mỹ cao, phù hợp với nhiều gia đình mong muốn sở hữu không gian sống tiện nghi, thoáng đãng và bền vững theo thời gian.
26. Mẫu mặt tiền nhà gác lửng 3 phòng ngủ đẹp
Một mẫu mặt tiền nhà gác lửng 3 phòng ngủ đẹp không chỉ gây ấn tượng bởi vẻ ngoài mà còn phải đảm bảo công năng sử dụng. Thiết kế thông minh giúp tối ưu hóa không gian, đón ánh sáng tự nhiên và tạo ra sự thông thoáng cho ngôi nhà. Bên cạnh đó, việc lựa chọn vật liệu xây dựng chất lượng cao như tấm bê tông đúc sẵn DURAflex hoặc tấm xi măng vân gỗ DURAwood sẽ đảm bảo độ bền và tính thẩm mỹ lâu dài cho ngôi nhà.

Mặt tiền nhà gác lửng 3 phòng ngủ ấn tượng nhất 2026 (Nguồn: Internet)

Mẫu mặt tiền nhà gác lửng 3 phòng ngủ đẹp, hiện đại (Nguồn: Internet)
>> Xem thêm:
- 20+ Mặt tiền nhà gác lửng 5m đẹp, đơn giản, hiện đại
- Tổng hợp 50+ mẫu nhà ống 2 tầng đẹp, hiện đại, được ưa chuộng nhất 2026
- 105+ Mẫu nhà 2 tầng đẹp, đơn giản, hiện đại, được ưa chuộng 2026
Bản vẽ nhà gác lửng 3 phòng ngủ chi tiết, đầy đủ công năng
Bản vẽ nhà gác lửng 3 phòng ngủ là giải pháp thiết kế tối ưu cho những gia đình cần không gian sống tiện nghi trên diện tích vừa phải. Với cách bố trí thông minh, nhà gác lửng giúp tận dụng tối đa diện tích sử dụng, đồng thời tạo cảm giác thoáng đãng và hiện đại. Thông thường, tầng trệt sẽ bao gồm phòng khách, bếp – ăn, một phòng ngủ và khu vực vệ sinh chung. Khu vực gác lửng được thiết kế với hai phòng ngủ còn lại, kết hợp với không gian sinh hoạt chung hoặc góc làm việc tùy theo nhu cầu sử dụng. Kiến trúc sư thường tính toán kỹ lưỡng về chiều cao tầng lửng, hệ thống thông gió và ánh sáng tự nhiên để đảm bảo sự thông thoáng, thoải mái cho ngôi nhà.
Hãy cùng DURAflex tham khảo một số bản vẽ nhà gác lửng 3 phòng ngủ chi tiết, đầy đủ tiện nghi dưới đây:

Bản vẽ nhà gác lửng 3 phòng ngủ chi tiết, đầy đủ công năng (Nguồn: Internet)

Bản vẽ nhà gác lửng 3 phòng ngủ hiện đại, thiết kế tiện nghi (Nguồn: Internet)

Bản vẽ nhà gác lửng 3 phòng ngủ đầy đủ tiện ích (Nguồn: Internet)

Bản vẽ nhà gác lửng 3 phòng ngủ thiết kế đơn giản, chi phí thấp (Nguồn: Internet)
>> Xem thêm:
- 20+ Bản vẽ nhà cấp 4 3 phòng ngủ 100m2 chi tiết, đầy đủ tiện nghi
- 60+ Mẫu nhà ống cấp 4 đẹp, hiện đại, chi phí thấp
- Top 45+ mẫu nhà tiền chế cấp 4 đẹp, đơn giản, hiện đại, giá rẻ
Mẫu phối cảnh nhà gác lửng 3 phòng ngủ 500 triệu đẹp
Các gia chủ và anh em thầu thợ có thêm tham khảo 1 số mẫu thiết kế phối cảnh nhà gác lửng 3 phòng ngủ 500 triệu dưới đây:
1. Mẫu thiết kế phòng khách nhà gác lửng 3 phòng ngủ 500 triệu
Thiết kế phòng khách nhà gác lửng 3 phòng ngủ không chỉ đáp ứng nhu cầu sinh hoạt của cả gia đình mà còn tạo nên điểm nhấn ấn tượng cho ngôi nhà. Sự kết hợp hài hòa giữa các yếu tố như ánh sáng tự nhiên, màu sắc, nội thất sẽ mang đến một không gian sống thư thái và ấm cúng.
Về phong cách thiết kế, bạn có thể lựa chọn nhiều phong cách khác nhau như hiện đại, tối giản, cổ điển hay tân cổ điển để phù hợp với sở thích cá nhân. Việc lựa chọn nội thất thông minh, đa năng sẽ giúp tiết kiệm diện tích và tăng tính thẩm mỹ cho căn phòng.

Mẫu thiết kế phòng khách nhà gác lửng 3 phòng ngủ 500 triệu hiện đại, ấm cúng (Nguồn: Internet)
>> Đọc thêm:
- 65+ Mẫu nhà cấp 4 mái Thái 8x12m đơn giản, đẹp nhất Việt Nam
- 35+ Mẫu nhà gỗ cấp 4 đẹp, hiện đại, đơn giản, xu hướng hiện nay
- 20+ Mẫu nhà gỗ đẹp, hiện đại, sang trọng, được ưa chuộng nhất hiện nay
2. Mẫu thiết kế tầng lửng tiện nghi
Với thiết kế thông minh, tầng lửng không chỉ là nơi nghỉ ngơi thư giãn mà còn có thể tận dụng làm phòng làm việc, phòng đọc sách, phòng tập gym mini hay thậm chí là một góc nhỏ xanh mát. Bằng cách bố trí nội thất hợp lý, tận dụng tối đa ánh sáng tự nhiên và kết hợp hài hòa giữa các yếu tố, tầng lửng sẽ trở thành một không gian sống đa năng, đáp ứng mọi nhu cầu của bạn.

Thiết kế tầng lửng nhà cấp 4 3 phòng ngủ 500 triệu tiện nghi (Nguồn: Internet)
3. Mẫu thiết kế cầu thang nhà gác lửng 3 phòng ngủ 500 triệu
Cầu thang không chỉ đơn thuần là lối đi lên xuống giữa các tầng mà còn là điểm nhấn kiến trúc, góp phần tạo nên vẻ đẹp thẩm mỹ cho ngôi nhà. Với mẫu nhà gác lửng 3 phòng ngủ 500 triệu, thiết kế cầu thang càng trở nên quan trọng. Bạn có thể lựa chọn nhiều kiểu dáng cầu thang khác nhau như cầu thang xoắn, cầu thang thẳng, cầu thang nhà chữ U,... để phù hợp với không gian và phong cách chung của ngôi nhà.

Thiết kế cầu thang nhà gác lửng 3 phòng ngủ 500 triệu đẹp (Nguồn: Internet)
>> Đọc thêm về các mẫu nhà khác:
- Top 20+ mẫu nhà lắp ghép 100 triệu đẹp, thông minh nhất 2026
- Top 10 mẫu nhà lắp ghép 30 triệu giá rẻ, nhỏ đẹp, tiện lợi
Lưu ý khi xây nhà gác lửng 3 phòng ngủ
Dưới đây là một số lưu ý quan trọng khi thi công nhà gác lửng 3 phòng ngủ mà các gia chủ và thầu thợ cần nắm rõ:
Thủ tục pháp lý
Trước khi tiến hành xây dựng, việc hoàn thiện các thủ tục pháp lý là rất quan trọng để đảm bảo công trình tuân thủ quy định và tránh các vấn đề pháp lý sau này.
- Giấy phép xây dựng: Đây là văn bản pháp lý do cơ quan nhà nước có thẩm quyền cấp, cho phép bạn thực hiện hoạt động xây dựng. Việc xin giấy phép xây dựng giúp bạn tránh những rắc rối pháp lý và đảm bảo quyền lợi của mình.
- Quy hoạch xây dựng: Bạn cần tìm hiểu kỹ về quy hoạch xây dựng của khu vực để đảm bảo ngôi nhà phù hợp với quy hoạch chung. Điều này bao gồm việc tuân thủ các quy định về chiều cao công trình, khoảng lùi, mật độ xây dựng,... Việc không tuân thủ quy hoạch có thể dẫn đến việc bị cưỡng chế phá dỡ công trình.
Kỹ thuật
Để đảm bảo nhà gác lửng 3 phòng ngủ của bạn an toàn và bền vững, bạn cần chú ý đến các khía cạnh kỹ thuật sau:
- Kết cấu chịu lực: Hệ thống kết cấu phải được thiết kế chắc chắn, đặc biệt là phần gác lửng, để đảm bảo khả năng chịu tải của người và nội thất.
- Hệ thống điện nước: Thiết kế hệ thống điện nước hợp lý, đảm bảo an toàn và tiện nghi. Việc bố trí các đường ống và dây dẫn cần được tính toán kỹ lưỡng để tránh ảnh hưởng đến kết cấu và thẩm mỹ của ngôi nhà.
- Cách âm, chống nóng: Để tạo không gian sống thoải mái, gia chủ cần chú trọng đến việc cách âm và chống nóng mái nhà gác lửng 3 phòng ngủ. Tấm cemboard DURAflex là một lựa chọn lý tưởng cho lót mái chống nóng. Vật liệu này không chỉ nhẹ, dễ thi công mà còn có khả năng chịu ẩm mốc, chống nóng và cách âm tốt. Sử dụng tấm cemboard giúp tăng tính thẩm mỹ cho ngôi nhà, đồng thời bảo vệ sức khỏe của các thành viên trong gia đình bằng cách giảm thiểu nguy cơ hư hại do ẩm ướt hoặc nóng bức.
Nội thất
Việc chọn lựa nội thất phù hợp đóng vai trò quan trọng trong việc tạo nên không gian sống đẹp và tiện nghi cho ngôi nhà gác lửng 3 phòng ngủ. Dưới đây là một số gợi ý mà bạn có thể tham khảo:
- Giường tầng hoặc giường có ngăn kéo: Sử dụng giường tầng hoặc giường tích hợp ngăn kéo giúp tiết kiệm diện tích phòng ngủ và tăng không gian lưu trữ.
- Tủ quần áo âm tường hoặc treo tường: Lựa chọn tủ quần áo âm tường hoặc tủ treo tường giúp tối ưu hóa không gian và tạo cảm giác gọn gàng.
- Bàn ăn gấp hoặc bàn đa năng: Sử dụng bàn ăn có thể gấp gọn hoặc bàn đa chức năng giúp tiết kiệm không gian và tăng tính linh hoạt trong sinh hoạt hàng ngày.
- Tận dụng không gian dưới gầm cầu thang: Biến không gian dưới gầm cầu thang thành tủ đựng đồ hoặc kệ sách để tăng diện tích lưu trữ mà không chiếm thêm không gian.
- Thiết bị vệ sinh thông minh: Lựa chọn các thiết bị vệ sinh như bồn cầu âm tường, lavabo treo tường giúp tiết kiệm diện tích và tạo cảm giác thoáng đãng cho phòng tắm.

Lưu ý đến thủ tục pháp lý, kỹ thuật và nội thất khi thi công nhà gác lửng 3 phòng ngủ (Nguồn: Internet)
Chi phí xây nhà gác lửng 3 phòng ngủ
Chi phí xây dựng nhà gác lửng 3 phòng ngủ phụ thuộc vào nhiều yếu tố như diện tích, đơn giá thi công và vị trí địa lý. Để có dự toán chính xác, chủ đầu tư cần hiểu rõ các khoản chi phí quan trọng và cách tính toán cụ thể.
Các khoản chi phí chính khi xây nhà gác lửng 3 phòng ngủ
- Chi phí nhân công: Dao động từ 1.100.000 - 1.500.000 VNĐ/m² tùy theo khu vực và mức độ phức tạp của công trình.
- Chi phí thi công phần thô: Khoảng 3.200.000 - 3.600.000 VNĐ/m², bao gồm kết cấu móng, khung nhà và hệ thống tường bao.
- Chi phí xây dựng trọn gói: Tùy vào chất lượng hoàn thiện, mức giá sẽ nằm trong khoảng 4.500.000 - 6.000.000 VNĐ/m².
>> Đọc thêm: Chi phí xây nhà cấp 4 trọn gói, mới nhất 2026 là bao nhiêu?
Cách tính chi phí xây dựng nhà gác lửng 3 phòng ngủ
Tổng diện tích xây dựng được tính bằng tổng diện tích móng, tầng 1, tầng lửng và phần mái. Công thức dự toán chi phí như sau:
Chi phí xây dựng = Diện tích xây dựng x Đơn giá thi công
Ví dụ:
Với một ngôi nhà có diện tích sàn tầng 1 là 70m², tầng lửng bằng 50% diện tích sàn tầng 1, ta có:
Diện tích xây dựng = 70m² + (70m² x 50%) = 105m²
Giả sử chủ đầu tư chọn gói xây dựng cao cấp với đơn giá 6.000.000 VNĐ/m², chi phí trọn gói sẽ là:
105m² x 6.000.000 VNĐ/m² = 630.000.000 VNĐ
Nếu diện tích lớn hơn, chẳng hạn 90m² sàn tầng 1, tổng diện tích xây dựng có thể lên tới 297m². Khi đó, chi phí sẽ dao động trong khoảng 1.782.000.000 VNĐ đối với gói thi công chất lượng cao.

Chi phí xây nhà gác lửng 3 phòng ngủ dao động từ 4,500,000 - 6,000,000 VNĐ/m2 (Nguồn: Internet)
>> Đọc thêm: Chi phí xây nhà cấp 4 trọn gói, mới nhất 2026 là bao nhiêu?
Một số câu hỏi thường gặp về nhà gác lửng 3 phòng ngủ
Nhà gác lửng 3 phòng ngủ bao nhiêu tiền?
Đơn giá xây dựng nhà gác lửng 3 phòng ngủ trọn gói dao động từ 4.250.000 - 6.200.000 VNĐ/m2. Trong đó, đơn giá thi công phần thô nằm trong khoản từ 2.750.000đ - 3.750.000 vnđ/m2 và đơn giá thi công hoàn thiện nhà là 1.400.000đ - 2.750.000 vnđ/m2.
Nhà gác lửng nên xây cao bao nhiêu?
Chiều cao tiêu chuẩn cho tầng lửng thường dao động từ 2,5m - 2,8m, tuy nhiên, trong một số thiết kế, chiều cao này có thể giảm xuống còn 2,2m - 2,5m.
Với những ưu điểm vượt trội như tối ưu hóa không gian, tiết kiệm chi phí, đa dạng công năng sử dụng và phù hợp với nhiều đối tượng khách hàng, nhà cấp 4 gác lửng 3 phòng ngủ xứng đáng là lựa chọn hàng đầu cho những ai đang có nhu cầu xây dựng nhà ở.
Để được tư vấn về các giải pháp vật liệu tấm xi măng ốp tường - sàn - vách - trần - mái nhà cấp 4 gác lửng 3 phòng ngủ, quý khách hàng vui lòng liên hệ:
- Hotline: 18001218
- Bấm: TƯ VẤN NGAY







Đánh giá và nhận xét
Đánh giá trung bình
0/5
5
4
3
2
1
Chia sẻ và nhận xét về bài viết
Chia sẻ và nhận xét về bài viết
Bài viết chưa có đánh giá nào