30+ Mẫu nhà cấp 4 mái bằng chữ L đẹp, hiện đại, tiết kiệm
DURAflex đăng vào lúc 30/10/2025 - 14:23
Nhà cấp 4 mái bằng chữ L đang là lựa chọn kiến trúc phổ biển ở Việt Nam, đặc biệt là tại các khu vực nông thôn và ngoại ô. Kiểu nhà này không chỉ mang đến không gian sống tiện nghi, thoải mái mà còn chinh phục gia chủ bằng thiết kế chữ L độc đáo, linh hoạt trên nhiều loại hình đất. Trong bài viết này, DURAflex sẽ giới thiệu đến bạn các mẫu nhà cấp 4 mái bằng chữ L đơn giản, xu hướng mới nhất năm 2025.
Nhà cấp 4 mái bằng chữ L là gì?
Nhà cấp 4 mái bằng chữ L là kiểu nhà một tầng có mặt bằng thiết kế theo hình chữ L, phần mái được đổ bê tông cốt thép phẳng, tạo nên vẻ đẹp hiện đại và vững chắc. Mẫu nhà này giúp gia chủ tận dụng tối đa diện tích đất, đồng thời tạo ra khoảng trống linh hoạt ở phần góc khuyết để làm sân vườn, gara hoặc nơi để xe.
Đặc điểm chính:
- Kiểu dáng: Mặt bằng hình chữ L với hai phần thân nhà nối liền nhau, tạo thành góc vuông hoặc góc khuyết hài hòa.
- Chiều cao: Thiết kế chỉ gồm một tầng, phù hợp với nhu cầu sinh hoạt của gia đình nhỏ hoặc trung bình.
- Mái nhà: Sử dụng mái bằng bê tông cốt thép bền chắc, có độ dốc thấp, mang phong cách hiện đại.
- Công năng: Tối ưu diện tích sử dụng, đặc biệt hiệu quả với các mảnh đất nhỏ, hẹp hoặc có hình dạng không vuông vắn

Nhà cấp 4 mái bằng chữ L là kiểu nhà một tầng thiết kế theo hình chữ L, mái bê tông cốt thép phẳng, vững chắc (Nguồn: Ảnh được tạo bởi AI)
>> Đọc thêm:
- Nhà cấp 4 là gì? Đặc điểm, cách phân biệt và quy định mới nhất
- Nhà sàn là gì? Khám phá các mẫu nhà sàn độc đáo, ấn tượng 2025
- Nhà cấp 3 là gì? Cách phân loại nhà ở tại Việt Nam
Ưu điểm của việc lựa chọn nhà cấp 4 mái bằng chữ L
- Tối ưu hóa diện tích xây dựng: Không chỉ hiệu quả trên những mảnh đất không vuông vắn ở thành thị, thiết kế chữ L còn là lựa chọn phù hợp cho các khu đất rộng ở nông thôn. Kiểu bố trí này kết nối không gian sân vườn và nhà ở một cách rành mạch, tạo nên một tổng thể hài hòa, tiện nghi cho cả gia đình.
- Phân chia không gian linh hoạt: Thiết kế chữ L cho phép phân chia các khu vực chức năng một cách khoa học, tạo sự thuận tiện trong sinh hoạt. Các phòng ngủ, phòng khách, bếp và khu vực sinh hoạt chung được bố trí hợp lý, đồng thời vẫn đảm bảo mỗi thành viên có không gian riêng để nghỉ ngơi và thư giãn.
- Phù hợp với khí hậu Việt Nam: Nhà cấp 4 mái bằng chữ L mang lại sự thông thoáng tối đa nhờ các lối đi rộng rãi, thuận tiện cho việc di chuyển. Mái bằng có khả năng chống nóng, mưa gió và phù hợp với khí hậu nhiệt đới ẩm của Việt Nam. Nhờ kết cấu vững chắc, loại nhà này có thể chịu được các hiện tượng thời tiết khắc nghiệt như mưa bão hay lũ lụt.

Nhà cấp 4 mái bằng chữ L tiết kiệm chi phí xây dựng (Nguồn: Ảnh được tạo bởi AI)
- Đa dạng kiểu dáng thiết kế: Mái bằng kết hợp với các đường nét kiến trúc đơn giản mang đến vẻ đẹp hiện đại, sang trọng. Nếu muốn, bạn cũng có thể kết hợp mái bằng với các đường cong mềm mại để tạo phong cách cổ điển. Sử dụng vật liệu thô mộc như gỗ, tre hay đá tự nhiên sẽ giúp ngôi nhà vừa gần gũi thiên nhiên vừa giữ được sự mộc mạc, tinh tế.
- Dễ dàng nâng cấp trong tương lai: Nhờ thiết kế chữ L, ngôi nhà có thể dễ dàng mở rộng thêm phòng hoặc không gian chức năng mà không ảnh hưởng đến kết cấu ban đầu. Hơn nữa, kết cấu mái bằng vững chắc còn cho phép bạn nâng tầng trong tương lai khi cần tăng diện tích sinh hoạt.
- Tiết kiệm chi phí xây dựng: Nhà cấp 4 mái bằng chữ L có diện tích xây dựng nhỏ hơn so với nhà 2 tầng, giúp giảm đáng kể chi phí xây dựng. Đồng thời, kết cấu mái bằng cũng đơn giản hơn nhà mái Thái hay nhà mái Nhật, từ đó giúp tiết kiệm chi phí vật liệu và thi công.
- Thi công nhanh chóng: Nhờ thiết kế gọn gàng, ít chi tiết phức tạp, nhà cấp 4 mái bằng chữ L có thể thi công nhanh chóng, tiết kiệm thời gian. Việc sử dụng vật liệu hiện đại như tấm Cemboard DURAflex, bê tông cốt thép, tấm xi măng vân gỗ DURAwood Low Carbon càng giúp rút ngắn tiến độ thi công mà vẫn đảm bảo chất lượng công trình.
Top mẫu nhà cấp 4 mái bằng chữ L đẹp, đáng tham khảo hiện nay
Mẫu nhà cấp 4 chữ L 1 tầng mái bằng đẹp ở nông thôn
Mẫu nhà cấp 4 nông thôn hình chữ L 1 tầng mái bằng nổi bật với khả năng tận dụng tối đa diện tích đất, mang lại thiết kế thoáng đãng và đầy đủ công năng sinh hoạt. Mặc dù không quá đồ sộ hay hiện đại như nhà cao tầng, nhưng chính sự đơn giản, hài hòa của nhà cấp 4 chữ L lại tạo nên cảm giác ấm cúng, bình yên và thoải mái, rất thích hợp với lối sống an nhàn ở vùng quê.

Mẫu nhà cấp 4 nông thôn 250 triệu mái bằng chữ L đẹp, ấn tượng (Nguồn: Ảnh được tạo bởi AI)

Mẫu nhà cấp 4 chữ L 1 tầng mái bằng đẹp, thoáng mát ở nông thôn (Nguồn: Ảnh được tạo bởi AI)
>> Tham khảo thêm:
- 75+ Mẫu nhà cấp 4 nông thôn 3 phòng ngủ đẹp, giá rẻ nhất
- 45+ Mẫu nhà ống 1 tầng nông thôn đẹp, hiện đại, giá rẻ 2025
- Top 20 Mẫu nhà tiền chế nông thôn đẹp, đơn giản, giá rẻ
Mẫu nhà cấp 4 mái bằng chữ L đơn giản
Nhà cấp 4 mái bằng chữ L đơn giản là lựa chọn lý tưởng cho những ai yêu thích sự gọn gàng, tinh tế và muốn tối ưu chi phí xây dựng. Thiết kế tập trung vào công năng sử dụng, giúp phân chia không gian sinh hoạt khoa học và mạch lạc nhờ bố cục chữ L, đồng thời tận dụng tối đa ánh sáng và gió tự nhiên để mang lại cảm giác thoáng đãng. Với chi phí hợp lý cùng mái bằng kiên cố, mẫu nhà chữ L là giải pháp an cư vừa kinh tế, vừa thẩm mỹ, lại bền vững cho cuộc sống lâu dài.

Mẫu nhà cấp 4 mái bằng chữ L đơn giản, tiện nghi (Nguồn: Ảnh được tạo bởi AI)

Mẫu nhà cấp 4 mái bằng chữ L đơn giản, giá rẻ (Nguồn: Ảnh được tạo bởi AI)

Mẫu nhà cấp 4 mái bằng chữ L đơn giản, đẹp, ấn tượng (Nguồn: Ảnh được tạo bởi AI)
>> Có thể bạn quan tâm:
- TOP 30 mẫu nhà 3 gian truyền thống đơn giản, hiện đại
- 20+ Mẫu nhà gỗ đẹp, hiện đại, sang trọng, được ưa chuộng nhất hiện nay
- 40+ Mẫu nhà mái lệch đẹp, thiết kế hiện đại nhất hiện nay
Mẫu nhà cấp 4 mái bằng chữ L hiện đại
Nhà cấp 4 chữ L mái bằng hiện đại mang phong cách kiến trúc sang trọng và thời thượng, nổi bật với những đường nét mạnh mẽ, dứt khoát đầy cuốn hút. Sự tinh tế được thể hiện qua việc sử dụng các vật liệu cao cấp như kính cường lực khổ lớn, gỗ ốp ngoài trời và tấm xi măng Duraflex có độ bền cao, giúp công trình chắc chắn. Thiết kế ưu tiên không gian mở, kết hợp thiết kế sân vườn và hiên nhà rộng rãi, tạo nên môi trường sống trong lành, thư thái và nâng cao chất lượng nghỉ ngơi cho cả gia đình.

Mẫu nhà cấp 4 mái bằng chữ L hiện đại, sang trọng (Nguồn: Ảnh được tạo bởi AI)

Mẫu nhà cấp 4 mái bằng chữ L hiện đại, phù hợp mọi gia đình (Nguồn: Ảnh được tạo bởi AI)

Mẫu nhà cấp 4 mái bằng chữ L hiện đại, tối giản với tấm ốp tường trang trí DURAflex (Nguồn: Ảnh được tạo bởi AI)

Mẫu nhà cấp 4 mái bằng chữ L hiện đại, ấm cúng (Nguồn: Ảnh được tạo bởi AI)
>> Đọc tham khảo:
- 150+ Mẫu nhà cấp 4 chữ L mái tôn đẹp, ấn tượng, tối ưu chi phí
- 50+ Mẫu nhà 2 tầng chữ L 100m2 đẹp, hiện đại, tiện nghi 2025
Mẫu nhà cấp 4 mái bằng chữ L tân cổ điển
Nhà cấp 4 mái bằng chữ L tân cổ điển đạt được sự cân bằng hoàn hảo khi kết hợp giữa sự tiện lợi vượt trội của kiến trúc hiện đại và vẻ đẹp tinh tế, sang trọng của phong cách cổ điển. Những đường phào chỉ và hoa văn được chạm khắc tỉ mỉ làm tôn lên nét quý phái cho mặt tiền, tạo điểm nhấn khác biệt và khẳng định đẳng cấp cho tổng thể ngôi nhà.

Mẫu nhà cấp 4 mái bằng chữ L tân cổ điển được nhiều người ưa chuộng (Nguồn: Ảnh được tạo bởi AI)

Mẫu nhà cấp 4 mái bằng chữ L tân cổ điển sang trọng, tinh tế (Nguồn: Ảnh được tạo bởi AI)
>> Xem thêm:
- Top 150 mẫu biệt thự tân cổ điển 2 tầng 1 tỷ đẹp, hiện đại
- 55+ Mẫu nhà ống tân cổ điển 3 tầng hiện đại, đẹp nhất 2025
Mẫu nhà cấp 4 mái bằng chữ L thiết kế ấn tượng
Mẫu nhà cấp 4 mái bằng chữ L thiết kế ấn tượng được nâng tầm nhờ việc kết hợp khéo léo các vật liệu cao cấp và độc đáo, tạo nên điểm nhấn mạnh mẽ. Việc sử dụng kính cường lực khổ lớn, ốp đá granite hay các vật liệu hiện đại giúp hình thành những mảng khối tinh tế, biến ngôi nhà trở thành một tác phẩm kiến trúc nổi bật, thu hút mọi ánh nhìn giữa khu phố.

Mẫu nhà cấp 4 mái bằng chữ L thiết kế ấn tượng, rộng rãi (Nguồn: Ảnh được tạo bởi AI)

Mẫu nhà cấp 4 mái bằng chữ L thiết kế ấn tượng, không gian sống thoáng mát (Nguồn: Ảnh được tạo bởi AI)

Mẫu nhà cấp 4 mái bằng chữ L thiết kế ấn tượng, độc đáo (Nguồn: Ảnh được tạo bởi AI)
>> Đọc thêm các mẫu nhà khác:
- 60+ Mẫu nhà mái ngói cấp 4 truyền thống, đẹp, hiện đại 2025
- 35+ Mẫu nhà gỗ cấp 4 đẹp, hiện đại, đơn giản, xu hướng hiện nay
- TOP 20 mẫu nhà chữ U đẹp, hiện đại, độc đáo nhất 2025
Mẫu nhà cấp 4 mái bằng chữ L có gác lửng
Nhà cấp 4 mái bằng chữ L có gác lửng là một giải pháp thiết kế thông minh, giúp tối ưu hóa diện tích sử dụng một cách hiệu quả mà vẫn giữ được sự tiện lợi của nhà một tầng. Phần gác lửng mở rộng thêm khu vực linh hoạt như phòng làm việc, phòng ngủ phụ hay khu vui chơi. Với nhà cấp 4 có gác lửng, việc sử dụng tấm bê tông nhẹ Duraflex làm tấm lót sàn giúp công trình vững chắc, cách âm và chịu ẩm hiệu quả. Nhờ đó, gia chủ có thể tận hưởng không gian sống bền đẹp, tiết kiệm chi phí mà vẫn hiện đại và thoáng đãng.

Mẫu nhà cấp 4 mái bằng chữ L có gác lửng tận dụng tối đa diện tích (Nguồn: Ảnh được tạo bởi AI)

Mẫu nhà cấp 4 mái bằng chữ L có gác lửng rộng rãi (Nguồn: Ảnh được tạo bởi AI)
>> Các bài viết liên quan:
- 59+ Mẫu nhà gác lửng 2 phòng ngủ đẹp, hiện đại, sang trọng
- Top mẫu nhà gác lửng 3 phòng ngủ đẹp, xu hướng 2025
- Top 150+ Mẫu nhà cấp 4 gác lửng 200 triệu đẹp nhất 2025
Mẫu nhà cấp 4 mái bằng chữ L 2 phòng ngủ
Mẫu nhà cấp 4 mái bằng chữ L 2 phòng ngủ nổi bật với thiết kế thông minh, tối ưu không gian và chi phí, đồng thời vẫn đảm bảo đầy đủ tiện nghi và mang lại cảm giác thoáng đãng. Kiểu dáng hiện đại, mẫu nhà này tương đồng với những mẫu nhà tiền chế cấp 4 đẹp, giá rẻ, vừa bền chắc vừa tiết kiệm chi phí xây dựng.

Mẫu nhà cấp 4 mái bằng chữ L 2 phòng ngủ đơn giản (Nguồn: Ảnh được tạo bởi AI)

Mẫu nhà cấp 4 mái bằng chữ L 2 phòng ngủ thoáng mát (Nguồn: Ảnh được tạo bởi AI)

Mẫu nhà cấp 4 2 phòng ngủ mái bằng chữ L tối giản, đẹp mắt (Nguồn: Ảnh được tạo bởi AI)

Mẫu nhà cấp 4 mái bằng chữ L 2 phòng ngủ sang trọng, thoáng mát (Nguồn: Ảnh được tạo bởi AI)
>> Tìm hiểu thêm:
- 20+ Mẫu nhà tiền chế 2 phòng ngủ tối giản, tiện nghi, giá rẻ
- Top 20+ mẫu nhà lắp ghép 2 phòng ngủ đẹp, lý tưởng, giá rẻ
Mẫu nhà cấp 4 mái bằng chữ L 3 phòng ngủ
Mẫu nhà cấp 4 chữ L 3 phòng ngủ mái bằng là lựa chọn tối ưu cho các gia đình đông thành viên hoặc những ai muốn sở hữu không gian rộng rãi, tiện nghi. Thiết kế đảm bảo sự chắc chắn và đáng tin cậy, với cách phân chia không gian linh hoạt giúp các phòng chức năng được bố trí khoa học, tận dụng tối đa ánh sáng và gió tự nhiên. Nhờ vậy, ngôi nhà luôn mang lại cảm giác thoải mái, tiện nghi và nâng cao chất lượng sống, đồng thời được đánh giá cao về tính ứng dụng và giá trị lâu dài.

Mẫu nhà cấp 4 3 phòng ngủ 300 triệu mái bằng chữ L đẹp, tiện lợi (Nguồn: Ảnh được tạo bởi AI)

Mẫu nhà cấp 4 3 phòng ngủ 500 triệu mái bằng chữ L hiện đại, thoáng mát (Nguồn: Ảnh được tạo bởi AI)

Mẫu nhà cấp 4 mái bằng chữ L 3 phòng ngủ đẹp, sang trọng (Nguồn: Ảnh được tạo bởi AI)
>> Tham khảo thêm:
- 45+ Mẫu nhà cấp 4 mái Thái 3 phòng ngủ đẹp, hiện đại, giá rẻ
- 35+ Mẫu nhà cấp 4 mái Nhật 3 phòng ngủ đẹp, hiện đại, giá rẻ
- 20+ Mẫu nhà lắp ghép 3 phòng ngủ đẹp, giá rẻ, mới nhất 2025
Mẫu nhà cấp 4 mái bằng chữ L 4 phòng ngủ
Mẫu nhà cấp 4 mái bằng chữ L 4 phòng ngủ hiện đang là lựa chọn lý tưởng cho những gia đình yêu thích không gian sống gần gũi thiên nhiên. Thiết kế chữ L giúp tận dụng tối đa ánh sáng và gió tự nhiên, đồng thời tạo ra khoảng sân vườn rộng rãi, phù hợp làm nhà vườn nhỏ đẹp hay nơi bố trí nhà chòi sân vườn nghỉ ngơi. Với 4 phòng ngủ tiện nghi, gia đình vẫn giữ được sự riêng tư, trong khi khoảng sân trước và sau mang đến không gian thư giãn, trồng cây xanh, hoa cỏ, kết hợp hài hòa giữa kiến trúc hiện đại và thiên nhiên.

Mẫu nhà cấp 4 mái bằng chữ L 4 phòng ngủ đẹp, ấn tượng (Nguồn: Ảnh được tạo bởi AI)

Mẫu nhà cấp 4 mái bằng chữ L 4 phòng ngủ ấm cúng, gần gũi (Nguồn: Ảnh được tạo bởi AI)
>> Tham khảo các mẫu nhà khác:
- 50 Mẫu nhà cấp 4 mái Nhật 4 phòng ngủ đẹp, giá rẻ nhất 2025
- 49+ Mẫu nhà cấp 4 4 phòng ngủ 400 triệu đẹp, hiện đại nhất 2025
- 50+ Mẫu nhà 2 tầng 4 phòng ngủ dưới 1 tỷ độc đáo, đẳng cấp 2025
Mẫu nhà cấp 4 chữ L 100m2 mái bằng
Mẫu nhà cấp 4 chữ L 100m2 mái bằng mang đến một không gian sống rộng rãi, tích hợp trọn vẹn tiện ích cho một tổ ấm hiện đại. Mái bằng bê tông mang vẻ đẹp thức thời, bền vững và dễ bảo trì theo thời gian. Với diện tích 100m2, ngôi nhà dễ dàng bố trí 2 phòng ngủ, phòng khách, bếp và khu vệ sinh riêng tư. Kiểu nhà này phù hợp với gia đình trẻ bởi chi phí xây dựng hợp lý, thi công nhanh và đảm bảo sự thoải mái trong sinh hoạt hằng ngày.

Mẫu nhà cấp 4 chữ L 100m2 mái bằng đẹp, thiết kế hiện đại (Nguồn: Ảnh được tạo bởi AI)

Mẫu nhà cấp 4 chữ L 100m2 mái bằng rộng rãi, thoáng mát (Nguồn: Ảnh được tạo bởi AI)
>> Xem thêm:
- 30+ Mẫu nhà cấp 4 đẹp 5x20 hiện đại, chi phí thấp, xu hướng
- Top 60+ mẫu nhà ống 1 tầng đẹp 5x20 tiện nghi, giá rẻ 2025
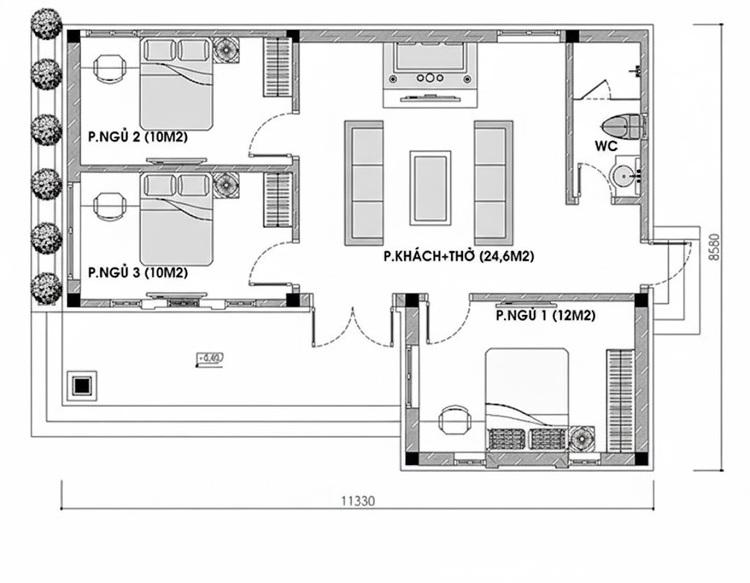
Gợi ý bản vẽ mặt bằng nhà cấp 4 mái bằng chữ L
Tổng hợp các gợi ý bản vẽ thiết kế nhà cấp 4 mái bằng chữ L, từ 2 đến 3 phòng ngủ, giúp bạn kiến tạo không gian sống thông thoáng, riêng tư và hợp lý cho mọi gia đình.

Bản vẽ nhà cấp 4 mái bằng chữ L hiện đại, đông thành viên (Nguồn: Ảnh được tạo bởi AI)

Bản vẽ nhà cấp 4 3 phòng ngủ 100m2 mái bằng chữ L chi tiết (Nguồn: Ảnh được tạo bởi AI)

Bản vẽ thiết kế nhà cấp 4 mái bằng chữ L 100m2 với đầy đủ công năng (Nguồn: Ảnh được tạo bởi AI)

Bản vẽ thiết kế nhà cấp 4 mái bằng chữ L có 4 phòng ngủ rộng rãi (Nguồn: Ảnh được tạo bởi AI)
>> Đọc thêm:
- 99+ Mẫu nhà cấp 4 đẹp giá rẻ 100 triệu hiện đại nhất 2025
- 99+ Mẫu nhà cấp 4 đẹp giá rẻ 300 triệu mới, được ưa chuộng nhất
- 55+ Mẫu nhà cấp 4 giá 500 triệu đẹp, đơn giản, hiện đại, giá rẻ
Chi phí xây dựng nhà cấp 4 mái bằng chữ L
Chi phí xây nhà cấp 4 mái bằng chữ L phụ thuộc vào nhiều yếu tố như phong cách thiết kế, diện tích, vật liệu sử dụng, thời điểm thi công và vị trí xây dựng. Do đó, mỗi công trình sẽ có mức chi phí khác nhau và cần được tính toán kỹ lưỡng trước khi triển khai.
Về cơ bản chi phí xây dựng được tính bằng chi phí thiết kế và thi công.
- Chi phí thiết kế: 150.000 VND/m²
- Chi phí thi công phần thô: 3.000.000 – 4.000.000 VND/m²
- Chi phí xây nhà trọn gói: 6.000.000 – 7.000.000 VND/m²
Thông thường, giá thi công được tính như sau: Chi phí thi công = Diện tích x Đơn giá/m²
Trong đó, diện tích xây dựng bao gồm: móng, sàn trệt, mái và các khu vực phụ (nếu có). Mỗi hạng mục được tính theo hệ số riêng dựa trên tiêu chuẩn thi công. Từ đó, gia chủ có thể tính toán diện tích thực tế và áp dụng đơn giá phù hợp.
Lưu ý: Chi phí trên chỉ mang tính chất tham khảo. Để biết được chi phí chính xác và phù hợp nhất với nhu cầu của gia đình, quý khách hàng nên liên hệ trực tiếp đến nhà thầu hoặc đơn vị thiết kế thi công uy tín.

Chi phí nhà cấp 4 mái bằng chữ L giá rẻ (Nguồn: Ảnh được tạo bởi AI)
>> Xem thêm:
- Bảng giá xây nhà cấp 4 trọn gói 200 triệu chi tiết
- 20+ Gợi ý xây nhà cấp 4 khoảng 150 triệu trọn gói đẹp, tiết kiệm
- Xây nhà 500 triệu ở nông thôn đẹp, đơn giản, tối ưu chi phí
Lưu ý khi thiết kế và xây dựng nhà cấp 4 mái bằng chữ L
Bố trí công năng hợp lý
Khi thiết kế nhà cấp 4 mái bằng chữ L, cần phân chia rõ ràng các khu vực chức năng như phòng khách, phòng ngủ, phòng bếp và nhà vệ sinh để đảm bảo tiện lợi và khoa học trong sinh hoạt. Việc bố trí hợp lý giúp tận dụng tối đa diện tích sử dụng, đồng thời lựa chọn vị trí các phòng theo phong thủy sẽ mang lại may mắn và tài lộc cho gia chủ.
Chọn thời điểm xây dựng
Nên tránh thi công vào mùa mưa bão, vì thời tiết xấu ảnh hưởng đến tiến độ và chất lượng công trình. Thời điểm lý tưởng là mùa khô ráo, giúp thi công thuận lợi và đảm bảo chất lượng công trình bền vững.
Tối ưu hóa ánh sáng và thông gió
Cần bố trí cửa sổ ở các vị trí thích hợp để tận dụng ánh sáng tự nhiên và tạo luồng thông gió. Việc sử dụng giếng trời là giải pháp hiệu quả cho các khu vực không có cửa sổ, giúp không gian bên trong nhà luôn thoáng mát và tràn ngập ánh sáng.

Khi xây dựng nhà cấp 4 mái bằng chữ L gia chủ cần tối ưu ánh sáng, thông gió (Nguồn: Ảnh được tạo bởi AI)
Lựa chọn vật liệu xây dựng
Sử dụng các vật liệu như đá ốp, nhựa, vật liệu gỗ, kính, gạch, nhôm… phù hợp với điều kiện khí hậu địa phương sẽ giúp ngôi nhà bền đẹp theo thời gian. Vật liệu chất lượng không chỉ tăng tính thẩm mỹ mà còn đảm bảo độ bền, chống thấm và chống mối mọt hiệu quả.
Chống nóng cho mái bằng
Để giảm nhiệt độ bên trong nhà cấp 4 mái bằng, nên kết hợp lớp chống thấm và lớp cách nhiệt cho mái, đồng thời trồng cây xanh để tạo bóng râm, giữ không gian luôn mát mẻ và hạn chế ẩm ướt. Bên cạnh đó, việc sử dụng vách ngăn phòng khách và bếp, vách ngăn phòng ngủ, vách ngăn phòng thờ từ tấm Duraflex Low Carbon giúp tối ưu công năng, đảm bảo sự riêng tư và tạo không gian sống hiện đại, thông thoáng, bền chắc cho cả gia đình.
Lưu ý yếu tố phong thủy
Hướng nhà nên hợp với tuổi và mệnh của gia chủ. Bố trí các phòng chức năng theo phong thủy sẽ mang lại may mắn và tài lộc. Đồng thời, cần tránh đặt các vật dụng kiêng kỵ để không ảnh hưởng đến vận khí của gia đình.
Chú ý đến điểm khuyết góc
Những điểm khuyết góc trong thiết kế có thể tận dụng làm sân vườn, tiểu cảnh hoặc khu vực sinh hoạt chung. Nếu điểm khuyết nằm ở vị trí quan trọng, nên xử lý theo phong thủy để hóa giải điều không may và cân bằng năng lượng trong nhà.
Lựa chọn đơn vị thiết kế, thi công uy tín
Một đơn vị thiết kế uy tín sẽ đảm bảo ngôi nhà vừa đẹp vừa khoa học, an toàn và tiện nghi. Đồng thời, đơn vị thi công đáng tin cậy sẽ đảm bảo tiến độ công trình và chất lượng thi công theo đúng tiêu chuẩn.

Lựa chọn nhà thầu uy tín cho nhà cấp 4 mái bằng chữ L (Nguồn: Ảnh được tạo bởi AI)
Nhà cấp 4 mái bằng chữ L mang đến không gian sống tiện nghi, hiện đại và tối ưu diện tích. Với thiết kế thông minh, vật liệu chất lượng và bố trí hợp lý, ngôi nhà đẹp, bền, thoáng mát và phù hợp phong thủy.
Để được tư vấn và nhận báo giá chi tiết về tấm Cemboard DURAflex hoặc tấm xi măng vân gỗ DURAwood làm ốp tường, lót sàn và vách ngăn nhà cấp 4 mái bằng chữ L, hãy liên hệ qua:
- Hotline: 18001218
- Hoặc bấm: TƯ VẤN NGAY





Đánh giá và nhận xét
Đánh giá trung bình
0/5
5
4
3
2
1
Chia sẻ và nhận xét về bài viết
Chia sẻ và nhận xét về bài viết
Bài viết chưa có đánh giá nào