10+ Mẫu nhà khung thép 2 tầng đẹp, hiện đại nhất 2026
Nhà khung thép (nhà tiền chế) 2 tầng đang trở thành xu hướng xây dựng được ưa chuộng nhờ ưu điểm vượt trội về tốc độ thi công, khả năng chịu lực tốt và chi phí tối ưu hơn so với nhà bê tông cốt thép truyền thống. Nếu bạn đang ấp ủ dự định xây dựng một ngôi nhà hiện đại, bền vững với ngân sách được kiểm soát chặt chẽ, việc nắm rõ bảng báo giá nhà khung thép 2 tầng chi tiết, mới nhất 2026 là bước khởi đầu không thể thiếu. Bài viết này DURAflex sẽ cung cấp thông tin toàn diện về các yếu tố cấu thành chi phí, giúp bạn lập kế hoạch tài chính hiệu quả nhất.
Nhà khung thép 2 tầng là gì?
Nhà khung thép 2 tầng là kiểu công trình sử dụng kết cấu thép làm hệ chịu lực chính, bao gồm cột, dầm và sàn, thay cho bê tông cốt thép truyền thống. Các cấu kiện thép được gia công sẵn tại nhà máy theo bản vẽ kỹ thuật, sau đó vận chuyển đến công trường để lắp ráp, giúp rút ngắn thời gian thi công và tối ưu chi phí xây dựng. Nhờ đặc tính bền vững, chịu lực tốt và dễ điều chỉnh thiết kế, nhà khung thép 2 tầng mang lại sự linh hoạt trong bố trí không gian, đồng thời đáp ứng đa dạng nhu cầu sử dụng như nhà ở, văn phòng, quán cà phê hay biệt thự.

Nhà khung thép 2 tầng là nhà từ cấu kiện thép, có 2 tầng và được gia công sẵn tại nhà máy theo bản vẽ (Nguồn: Internet)
>> Xem thêm:
- Nhà cấp 4 là gì? Đặc điểm, cách phân biệt và quy định mới nhất
- Nhà tiền chế là gì? Thông tin A-Z về nhà tiền chế mới nhất
- Nhà lắp ghép di động là gì? Báo giá và các mẫu nhà đẹp hiện nay
- Báo giá tấm sàn bê tông nhẹ lắp ghép trọn gói thi công 2026
Các loại nhà khung thép 2 tầng phổ biến
Nhà khung thép 2 tầng hiện nay được ứng dụng rộng rãi nhờ khả năng thi công nhanh, kết cấu bền vững và linh hoạt trong thiết kế. Tùy theo nhu cầu sử dụng, loại hình công trình này được phát triển với nhiều mô hình khác nhau, đáp ứng cả mục đích dân dụng lẫn công nghiệp. Một số loại nhà khung thép 2 tầng phổ biến gồm:
- Nhà khung thép 2 tầng để ở cho hộ gia đình: Thiết kế hiện đại, tối ưu không gian sinh hoạt, phù hợp với xu hướng nhà ở tiết kiệm chi phí và thời gian xây dựng.
- Nhà khung thép 2 tầng làm kho xưởng, nhà máy: Kết cấu chắc chắn, chịu lực tốt, dễ mở rộng diện tích, đáp ứng nhu cầu sản xuất và lưu trữ hàng hóa quy mô lớn.
- Nhà khung thép cho sân vận động hoặc công trình thể thao: Không gian rộng, ít cột, giúp tối ưu tầm nhìn và khả năng tổ chức các hoạt động đông người.
- Nhà khung thép cho công trình dân dụng và hạ tầng kỹ thuật: Bao gồm khu nhà ở nhân viên, nhà để xe, trung tâm vận tải, nhà chứa máy bay, xưởng đóng tàu hoặc các khu chức năng chuyên biệt khác.
Cấu tạo của nhà khung thép 2 tầng
Chi phí xây dựng nhà khung thép 2 tầng thường phụ thuộc vào thiết kế và giải pháp kết cấu cụ thể. Tuy nhiên, xét về cấu trúc cơ bản, hầu hết các mẫu nhà khung thép hai tầng đều được hình thành từ những hạng mục chính sau, giúp đảm bảo độ bền vững, khả năng chịu lực và hiệu quả sử dụng lâu dài:
- Móng nhà: Móng thường được thi công bằng bê tông cốt thép, thiết kế phù hợp với diện tích, quy mô và tải trọng tổng thể của công trình nhằm đảm bảo sự ổn định cho toàn bộ ngôi nhà.
- Cột nhà: Hệ cột trong nhà khung thép 2 tầng chủ yếu sử dụng thép hình chữ U, có khả năng chịu lực tốt và đóng vai trò trụ cột trong việc nâng đỡ toàn bộ kết cấu.
- Hệ kèo: Kèo được làm từ thép hộp, liên kết trực tiếp với cột bằng bulong và bản mã, giúp tăng độ chắc chắn và thuận tiện trong quá trình lắp dựng.
- Xà gồ mái: Kết cấu xà gồ sử dụng thép mạ kẽm, có khả năng chống gỉ sét, đảm bảo độ bền và tuổi thọ cho hệ mái.
- Mái nhà: Loại mái được lựa chọn theo thiết kế tổng thể, phổ biến là mái cách âm hoặc mái cách nhiệt nhằm nâng cao sự thoải mái khi sử dụng.
- Sàn nhà: Sàn được thiết kế chú trọng khả năng cách âm, thường sử dụng tấm xi măng DURAflex Low Carbon, tấm lót sàn hoặc tấm thép mạ kẽm để tăng độ bền và giảm tải trọng.
- Cầu thang: Cầu thang kết nối hai tầng thường có kết cấu thép kết hợp bậc gỗ, vừa đảm bảo công năng, vừa tăng tính thẩm mỹ cho không gian.
- Tường bao: Tường bao sử dụng vật liệu như tôn xốp hoặc tấm bê tông nhẹ DURAflex, giúp cách âm, cách nhiệt chống nóng hiệu quả và phù hợp với đặc điểm nhà khung thép.
- Vật liệu phụ trợ: Ngoài các hạng mục chính, công trình còn sử dụng ống thoát nước, bulong, ốc vít và các phụ kiện kỹ thuật khác để hoàn thiện hệ kết cấu.

Cấu tạo cơ bản của nhà khung thép 2 tầng gồm phần móng, cột, kèo, xà gồ, mái và sàn nhà (Nguồn: Internet)
>> Tham khảo:
- 25+ mẫu nhà lắp ghép 2 tầng đẹp, giá rẻ 2026
- 25+ mẫu nhà tiền chế 2 mái đẹp, ấn tượng, hiện đại nhất
- 30+ Mẫu nhà container 2 tầng đẹp, chi phí thấp nhất hiện nay
Ưu điểm của nhà khung thép 2 tầng
Những mẫu nhà 2 tầng đẹp được xây dựng từ khung thép sở hữu các đặc điểm nổi bật sau:
Nhà chắc chắn, khả năng chịu lực cao
Kết cấu nhà khung thép 2 tầng được liên kết bằng hệ bu lông, ốc vít và các mối nối kỹ thuật có độ chính xác cao, giúp toàn bộ khung công trình liên kết chặt chẽ và ổn định. Nhờ sử dụng thép có khả năng chống gỉ và chịu lực tốt, công trình có thể đáp ứng tải trọng lớn, hạn chế biến dạng trong quá trình sử dụng. Điều này giúp tăng tuổi thọ công trình và đảm bảo an toàn vận hành lâu dài.
Thiết kế nhẹ, tiết kiệm chi phí xây dựng
So với nhà bê tông truyền thống, kết cấu khung thép có trọng lượng nhẹ hơn đáng kể, từ đó giảm áp lực lên nền móng và tiết kiệm chi phí thi công. Hệ khung thép kết hợp cùng tấm tôn hoặc vật liệu bao che hiện đại giúp bảo vệ không gian và hàng hóa hiệu quả. Ngoài ra, việc gia công cấu kiện sẵn tại nhà máy còn giúp giảm hao hụt vật liệu, tối ưu ngân sách đầu tư và rút ngắn thời gian hoàn thiện.
Tính thẩm mỹ cao và linh hoạt trong thiết kế
Nhà thép 2 tầng không chỉ chú trọng công năng mà còn đáp ứng tốt yếu tố thẩm mỹ. Kết cấu thép cho phép thiết kế không gian rộng, ít cột, dễ dàng bố trí mặt bằng theo nhu cầu sử dụng. Việc kết hợp đa dạng vật liệu hoàn thiện giúp công trình có diện mạo hiện đại, đồng bộ và phù hợp với nhiều mục đích sử dụng khác nhau.
Thời gian thi công nhanh chóng
Một trong những ưu điểm nổi bật của nhà khung thép tiền chế là tiến độ thi công nhanh hơn so với nhà bê tông cốt thép truyền thống. Các cấu kiện được sản xuất sẵn và chỉ cần lắp dựng tại công trường, giúp giảm đáng kể thời gian xây dựng. Quá trình thi công cũng ít bị ảnh hưởng bởi điều kiện thời tiết, nhờ đó doanh nghiệp có thể đưa công trình vào vận hành sớm, tối ưu hiệu quả đầu tư.

Nhà khung thép 2 tầng với ưu điểm về linh hoạt cao, tiết kiệm chi phí (Nguồn: Internet)
>> Tìm hiểu thêm:
- 30+ Mẫu nhà 2 tầng đẹp giá 700 triệu hiện đại, ấn tượng
- 50+ Mẫu nhà 2 tầng nông thôn 800 triệu đẹp lung linh, mê mẩn
- 40+ Mẫu nhà 2 tầng đẹp giá 1 tỷ độc đáo, xu hướng nhất 2026
Tại sao nhiều người chọn nhà khung thép 2 tầng?
Hiện nay, nhà khung thép 2 tầng ngày càng được nhiều gia đình lựa chọn thay thế cho nhà bê tông truyền thống nhờ các điểm hữu ích sau:
Nhiều ưu thế vượt trội so với nhà bê tông
So với phương pháp xây dựng bê tông cốt thép truyền thống vốn yêu cầu nhiều nhân công và thời gian thi công kéo dài, nhà khung thép sở hữu nhiều lợi thế rõ rệt. Quá trình lắp dựng được thực hiện nhanh chóng nhờ các cấu kiện được gia công sẵn, giúp tiết kiệm đáng kể chi phí, thường chỉ khoảng một phần ba so với nhà bê tông cùng quy mô. Bên cạnh đó, kết cấu thép có độ bền cao, khả năng chịu lực tốt và đảm bảo sự chắc chắn trong quá trình sử dụng lâu dài. Không gian bên trong cũng dễ dàng bố trí linh hoạt, thuận tiện cho việc thay đổi công năng, cơi nới hoặc cải tạo khi cần. Đặc biệt, các cấu kiện thép còn có thể tháo lắp, di chuyển và tái sử dụng, góp phần giảm lãng phí vật liệu và tối ưu giá trị đầu tư.
Nhà khung thép 2 tầng phù hợp với nhà phố chật hẹp
Đối với những khu đất có diện tích hạn chế tại đô thị, nhà khung thép 2 tầng trở thành giải pháp xây dựng hiệu quả. Khác với nhà bê tông cần nhiều tường chịu lực chiếm diện tích, kết cấu khung thép giúp tối đa hóa không gian sử dụng nhờ giảm bớt các bức tường dày bên trong. Nhờ đó, gia chủ có thể tận dụng gần như toàn bộ diện tích đất để bố trí công năng sinh hoạt. Ngoài ra, quá trình thi công chủ yếu là lắp ghép nên việc vận chuyển vật liệu đơn giản, hạn chế tiếng ồn, bụi bẩn và ít ảnh hưởng đến các hộ dân xung quanh. Điều này đặc biệt phù hợp với môi trường nhà phố đông đúc, nơi yêu cầu tiến độ nhanh và thi công gọn gàng.
Báo giá xây nhà khung thép 2 tầng mới nhất
Những yếu tố quyết định đến chi phí làm nhà khung thép
Chi phí làm nhà khung thép thường được tính theo m² xây dựng, tuy nhiên trên thực tế mức giá có thể chênh lệch đáng kể tùy vào nhiều yếu tố khác nhau. Việc hiểu rõ các yếu tố ảnh hưởng sẽ giúp gia chủ chủ động dự trù ngân sách và lựa chọn phương án thi công phù hợp ngay từ đầu. Cụ thể gồm:
- Giá sắt thép theo từng thời điểm: Sắt thép là vật liệu chính quyết định phần lớn chi phí xây dựng nhà khung thép. Giá thép trên thị trường thường biến động theo nguồn cung, nhu cầu và tình hình kinh tế. Khi thi công vào thời điểm giá thép ổn định hoặc giảm, tổng chi phí xây dựng sẽ tiết kiệm hơn, trong khi chi phí nhân công thường ít thay đổi.
- Quy mô và độ phức tạp của công trình: Diện tích xây dựng, số tầng, kiểu kiến trúc và mức độ chi tiết trong thiết kế đều ảnh hưởng trực tiếp đến giá thành. Công trình có kết cấu phức tạp, khẩu độ lớn hoặc yêu cầu kỹ thuật cao sẽ cần nhiều vật liệu và thời gian thi công hơn, từ đó làm tăng chi phí tổng thể.
- Điều kiện địa chất nền móng: Nền đất yếu hoặc khu vực có địa chất không ổn định thường phải gia cố móng bằng cách đóng cọc sâu hoặc xử lý nền trước khi thi công. Điều này làm phát sinh thêm chi phí vật liệu, máy móc và nhân công so với những khu đất có nền móng chắc chắn.
Giá xây dựng nhà khung thép 2 tầng cụ thể
Chi phí xây dựng nhà kết cấu thép 2 tầng không cố định mà phụ thuộc trực tiếp vào diện tích xây dựng, phương án thiết kế và mức độ hoàn thiện theo nhu cầu của gia chủ. Nhìn chung, tổng chi phí được cấu thành từ hai hạng mục chính, giúp gia chủ dễ dàng dự trù ngân sách và lựa chọn giải pháp phù hợp:
- Chi phí khung kết cấu thép: Đây là phần chịu lực chính của công trình, bao gồm cột, dầm và hệ khung thép. Mức giá hiện nay dao động khoảng 1.200.000 - 1.800.000 VNĐ/m2, tùy thuộc vào chủng loại thép, độ phức tạp của thiết kế và tiêu chuẩn kỹ thuật áp dụng.
- Chi phí hoàn thiện: Bao gồm tường bao, sàn, mái, hệ thống điện nước và hoàn thiện nội thất cơ bản. Chi phí hạng mục này phụ thuộc vào vật liệu và phong cách hoàn thiện mà gia chủ lựa chọn, thường dao động trong khoảng 3.000.000 - 5.000.000 VNĐ/m2.
Việc tách bạch rõ từng hạng mục chi phí không chỉ giúp quá trình lập kế hoạch xây dựng minh bạch hơn mà còn hỗ trợ gia chủ chủ động kiểm soát ngân sách, đảm bảo hiệu quả đầu tư và chất lượng công trình lâu dài.
>> Tham khảo chi tiết:
- Đơn giá xây dựng nhà thép tiền chế chi tiết, mới nhất hiện nay
- Chi phí xây nhà cấp 4 trọn gói chi tiết, mới nhất 2026
- Xây nhà cấp 4 khoảng 150 triệu TRỌN GÓI đẹp, tiện nghi
- 20+ Mẫu nhà 2 tầng nông thôn 500 triệu đẹp, tối ưu chi phí
Các yêu cầu liên quan đến nhà khung thép 2 tầng
Đối với nhà khung thép 2 tầng, gia chủ cần lưu ý các vấn đề sau khi thi công:
- Đảm bảo kết cấu móng vững chắc: Nhà khung sắt thép hai tầng có tải trọng lớn hơn nhà một tầng, vì vậy phần móng cần được tính toán và thi công kỹ lưỡng để đảm bảo khả năng chịu lực, giúp công trình ổn định, bền vững và an toàn trong quá trình sử dụng lâu dài.
- Thiết kế mặt sàn giữa hai tầng đạt chuẩn: Mặt sàn ngăn cách giữa tầng 1 và tầng 2 cần được thiết kế hợp lý, không chỉ đảm bảo khả năng chịu tải mà còn phải đáp ứng yêu cầu cách âm, giúp hạn chế tiếng ồn, mang lại không gian sinh hoạt yên tĩnh và thoải mái.
- Sử dụng vật liệu chất lượng cho cấu kiện chính: Các cấu kiện chính như cột, dầm, khung thép cần được làm từ vật liệu đạt tiêu chuẩn chất lượng cao, nhằm đảm bảo độ bền, khả năng chịu lực và tuổi thọ cho toàn bộ công trình.
- Đảm bảo chất lượng và thẩm mỹ cho cấu kiện phụ: Bên cạnh kết cấu chính, các cấu kiện phụ cũng cần được lựa chọn và thi công cẩn thận để vừa đáp ứng yêu cầu kỹ thuật, vừa đảm bảo tính thẩm mỹ, góp phần hoàn thiện tổng thể nhà khung sắt thép hai tầng.
Những mẫu nhà khung thép 2 tầng đẹp, tiện nghi
Các gia chủ và quý thầu thợ có thể tham khảo một số công trình nhà đẹp khung thép 2 tầng phổ biến dưới đây để có thêm nhiều ý tưởng cho ngôi nhà của mình:

Mẫu nhà lắp ghép 50 triệu khung thép 2 tầng 50m2 đẹp, giá rẻ (Nguồn: Internet)

Mẫu nhà 2 tầng chữ L 100m2 kết cấu thép bắt mắt, đầy đủ tiện nghi (Nguồn: Internet)

Mẫu nhà tiền chế 2 tầng 5x20 khung thép hiện đại, bền chắc (Nguồn: Internet)

Mẫu nhà lắp ghép 140 triệu khung thép 2 tầng đơn giản, thi công nhanh (Nguồn: Internet)

Mẫu nhà khung thép 2 tầng có thiết kế sân vườn đẹp, thoáng mát (Nguồn: Internet)
>> Đọc thêm:
- Top 5 mẫu nhà container 100 triệu cực đẹp và tiện nghi
- 40+ Mẫu nhà lắp ghép 300 triệu đẹp, đẳng cấp, tiện nghi 2026
- 50+ Mẫu nhà vườn nhỏ đẹp, đơn giản, giá rẻ, gần gũi thiên nhiên
- Quy trình thi công nhà thép tiền chế đúng chuẩn kỹ thuật
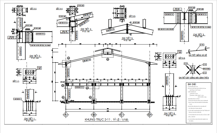
Bản vẽ thiết kế nhà kết cấu thép 2 tầng
Bản vẽ là yếu tố giúp đảm bảo về tính an toàn cũng như sự tiện nghi và đẹp mắt của công trình. Các bạn có thể tham khảo mẫu một số bản vẽ thiết kế nhà khung thép 2 tầng dưới đây:

Bản vẽ thiết kế nhà kết cấu thép 2 tầng đơn giản, dễ hình dung (Nguồn: Internet)

Hình ảnh bản vẽ thiết kế nhà kết cấu thép 2 tầng chuẩn kỹ thuật, tối ưu thi công và chi phí xây dựng (Nguồn: Internet)

Bản vẽ thiết kế nhà kết cấu thép 2 thể hiện chi tiết khung thép, mặt bằng và kết cấu chịu lực (Nguồn: Internet)

Bản vẽ kỹ thuật nhà kết cấu thép 2 tầng với bố trí không gian khoa học và giải pháp kết cấu hiện đại (Nguồn: Internet)
>> Nội dung có liên quan:
- Top 25+ bản vẽ nhà cấp 4 đơn giản, đầy đủ chi tiết nhất 2026
- 20+ Bản vẽ nhà cấp 4 3 phòng ngủ 100m2 chi tiết, đầy đủ tiện nghi
Lựa chọn xây dựng nhà khung thép 2 tầng là một quyết định thông minh, mang lại sự kết hợp hoàn hảo giữa tính thẩm mỹ hiện đại, độ bền vững và hiệu quả kinh tế. Để tối ưu hóa chi phí và đảm bảo chất lượng, việc sử dụng các vật liệu hiện đại, tiên tiến như tấm xi măng DURAflex Low Carbon cho sàn hoặc tấm vân gỗ DURAwood cho mặt dựng là giải pháp được các chuyên gia khuyến nghị, giúp công trình bền đẹp và thân thiện môi trường hơn.
Để nhận được tư vấn chi tiết về giải pháp vật liệu xây dựng nhẹ và bảng báo giá chính xác, phù hợp với thiết kế nhà khung thép 2 tầng của bạn, vui lòng liên hệ: 1800 1218 hoặc bấm: BÁO GIÁ NGAY





Đánh giá và nhận xét
Đánh giá trung bình
0/5
5
4
3
2
1
Chia sẻ và nhận xét về bài viết
Chia sẻ và nhận xét về bài viết
Bài viết chưa có đánh giá nào