65+ Mẫu nhà 2 tầng nông thôn 500 triệu đẹp, đầy đủ tiện nghi
DURAflex đăng vào lúc 02/03/2026 - 09:47
Ước mơ về một ngôi nhà 2 tầng khang trang, hiện đại tại nông thôn không còn là điều xa vời, ngay cả với ngân sách 500 triệu đồng. Sự phát triển của vật liệu xây dựng và các giải pháp thiết kế thông minh đã giúp nhiều gia đình hiện thực hóa mong muốn này. Bài viết này DURAflex sẽ mang đến hơn 20 mẫu nhà 2 tầng nông thôn đẹp, tiện nghi, và đặc biệt là cách tối ưu hóa chi phí để bạn có thể xây dựng tổ ấm trong tầm tay.
Top các mẫu nhà 2 tầng nông thôn 500 triệu đẹp, được ưa chuộng hiện nay
Dưới đây là những mẫu nhà 2 tầng nông thôn 500 triệu được đánh giá cao nhờ thiết kế hợp lý, tối ưu chi phí và công năng sử dụng.
1. Mẫu nhà 2 tầng nông thôn 500 triệu 3 phòng ngủ
Mẫu nhà 2 tầng đẹp ở nông thôn 500 triệu 3 phòng ngủ phù hợp với gia đình từ 4-6 thành viên, đảm bảo sự riêng tư và tiện nghi. Thiết kế thường ưu tiên hình khối đơn giản, mái thái hoặc mái bằng để tiết kiệm chi phí xây dựng, đồng thời vẫn đảm bảo tính thẩm mỹ. Không gian sinh hoạt chung như phòng khách, bếp và phòng ăn được sắp xếp liền mạch, giúp ngôi nhà thông thoáng và dễ sử dụng trong sinh hoạt hằng ngày.

Mẫu nhà 2 tầng nông thôn 500 triệu 3 phòng ngủ tiện nghi hiện đại (Nguồn: Internet)

Mẫu nhà 2 tầng nông thôn 500 triệu 3 phòng ngủ phù hợp gia đình trẻ (Nguồn: Internet)

Mẫu nhà 2 tầng nông thôn 500 triệu 3 phòng ngủ thiết kế gọn gàng (Nguồn: Internet)

Mẫu nhà 2 tầng nông thôn 500 triệu 3 phòng ngủ tối ưu chi phí (Nguồn: Internet)
>>Xem thêm:
- 40+ Mẫu nhà cấp 4 3 phòng ngủ 500 triệu đẹp, sang trọng, tiện nghi
- 65+ Mẫu nhà cấp 4 nông thôn 3 phòng ngủ đẹp, giá rẻ, mới nhất 2026
- 1000+ Mẫu nhà cấp 4 3 phòng ngủ 300 triệu đẹp xem là thích mê
2. Mẫu nhà 2 tầng nông thôn 500 triệu kiểu nhà vườn
Nhà 2 tầng nông thôn 500 triệu kiểu nhà vườn là lựa chọn lý tưởng cho những gia đình yêu thích không gian sống gần gũi thiên nhiên. Mẫu nhà này tận dụng lợi thế quỹ đất rộng ở nông thôn để bố trí sân vườn, tiểu cảnh hoặc khu trồng cây xanh xung quanh. Thiết kế chú trọng sự hài hòa giữa kiến trúc và cảnh quan, mang lại cảm giác thoáng đãng, thư giãn, đồng thời vẫn kiểm soát tốt chi phí trong mức 500 triệu

Mẫu nhà 2 tầng nông thôn 500 triệu kiểu nhà vườn gần gũi thiên nhiên (Nguồn: Internet)

Mẫu nhà 2 tầng nông thôn 500 triệu kiểu nhà vườn tiết kiệm chi phí xây dựng (Nguồn: Internet)

Mẫu nhà 2 tầng nông thôn 500 triệu kiểu nhà vườn không gian sống thoáng đãng (Nguồn: Internet)

Mẫu nhà 2 tầng nông thôn 500 triệu kiểu nhà vườn hài hòa cảnh quan (Nguồn: Internet)
>>> Tham khảo thêm:
- 50+ Mẫu nhà vườn nhỏ đẹp, đơn giản, giá rẻ, gần gũi thiên nhiên
- 100 Mẫu biệt thự nhà vườn đẹp, độc đáo, đa dạng kiểu dáng
- 15+ Mẫu nhà chòi sân vườn đẹp, đơn giản, hiện đại
3. Mẫu nhà 2 tầng nông thôn 500 triệu không gian mở
Xu hướng thiết kế không gian mở ngày càng được ưa chuộng nhờ khả năng tối ưu diện tích và ánh sáng tự nhiên. Mẫu nhà này thường sử dụng cửa kính lớn, ban công rộng và bố cục mở giữa các khu vực chức năng, giúp ngôi nhà luôn sáng sủa và thông thoáng. Với cách thiết kế hợp lý, nhà 2 tầng nông thôn 500 triệu không gian mở không chỉ mang lại trải nghiệm sống hiện đại mà còn giúp tiết kiệm chi phí hoàn thiện và vận hành lâu dài.

Mẫu nhà 2 tầng nông thôn 500 triệu không gian mở thoáng sáng, tiện nghi (Nguồn: Internet)

Mẫu nhà 2 tầng nông thôn 500 triệu không gian mở đẹp, rộng thoáng (Nguồn: Internet)

Mẫu nhà 2 tầng nông thôn 500 triệu không gian mở thiết kế đơn giản, hiện đại (Nguồn: Internet)
>>> Tham khảo thêm:
- 30+ Mẫu nhà 2 tầng nông thôn 800 triệu đẹp lung linh, mê mẩn
- 30+ Mẫu nhà 2 tầng đẹp giá 700 triệu hiện đại, ấn tượng
- 40+ Mẫu nhà 2 tầng đẹp giá 1 tỷ độc đáo, xu hướng nhất 2026
4. Mẫu nhà 2 tầng nông thôn 500 triệu có ban công rộng
Mẫu nhà 2 tầng đẹp ở nông thôn 500 triệu có ban công rộng được nhiều gia đình lựa chọn nhờ không gian ban công thoáng đãng, giúp đón gió và ánh sáng tự nhiên hiệu quả. Ban công rộng còn là nơi thư giãn, trồng cây xanh hoặc phơi đồ tiện lợi, đặc biệt phù hợp với lối sống sinh hoạt ở nông thôn. Thiết kế tổng thể thường ưu tiên hình khối đơn giản, giúp tiết kiệm chi phí nhưng vẫn đảm bảo tính thẩm mỹ và công năng sử dụng.

Mẫu nhà 2 tầng nông thôn 500 triệu có ban công rộng đẹp, thoáng đãng (Nguồn: Internet)

Mẫu nhà 2 tầng nông thôn 500 triệu có ban công rộng hiện đại, thẩm mỹ cao (Nguồn: Internet)
>>> Xem thêm:
- 10+ Ý tưởng cải tạo ban công thành góc sống ảo đẹp với chi phí rẻ nhất
- Ý tưởng trang trí ban công đẹp, hiện đại đón Tết 2025
5. Mẫu nhà 2 tầng nông thôn 500 triệu có gara ô tô
Đối với các gia đình có ô tô riêng, mẫu nhà 2 tầng tích hợp gara là giải pháp hợp lý và ngày càng phổ biến. Gara thường được bố trí ngay tầng trệt, thuận tiện cho việc di chuyển và bảo quản xe, đồng thời không ảnh hưởng đến không gian sinh hoạt chung. Với cách sắp xếp khoa học, mẫu nhà 2 tầng nông thôn 500 triệu có gara vẫn đảm bảo chi phí xây dựng trong tầm kiểm soát và phù hợp điều kiện đất ở nông thôn.

Mẫu nhà 2 tầng nông thôn 500 triệu có gara ô tô tiện lợi, bố cục khoa học (Nguồn: Internet)

Mẫu nhà 2 tầng nông thôn 500 triệu có gara ô tô đẹp, đầy đủ công năng (Nguồn: Internet)
>>> Xem Thêm:
- 65+ Mẫu nhà cấp 4 nông thôn đơn giản, đẹp, hiện đại 2025
- 45+ Mẫu nhà ống 1 tầng nông thôn đẹp, hiện đại, giá rẻ 2025
- 100+ Mẫu nhà cấp 4 nông thôn 250 triệu đẹp, ấn tượng, rẻ nhất 2025
6. Mẫu nhà 2 tầng nông thôn 500 triệu có gác lửng
Nhà 2 tầng kết hợp gác lửng là lựa chọn tối ưu cho những gia đình cần mở rộng không gian sử dụng nhưng vẫn muốn tiết kiệm ngân sách. Gác lửng có thể tận dụng làm phòng ngủ, phòng làm việc hoặc khu sinh hoạt chung, giúp tăng diện tích mà không làm phát sinh quá nhiều chi phí xây dựng. Nhà gác lửng 3 phòng ngủ 2 tầng này mang lại sự linh hoạt, phù hợp với nhiều nhu cầu khác nhau trong các mẫu nhà 2 tầng nông thôn 500 triệu hiện nay.

Mẫu nhà 2 tầng nông thôn 500 triệu có gác lửng giúp tối ưu không gian sống (Nguồn: Internet)

Mẫu nhà 2 tầng nông thôn 500 triệu có gác lửng đẹp, tiết kiệm ngân sách (Nguồn: Internet)
>>> Tham khảo:
- 99+ Mẫu nhà cấp 4 gác lửng đẹp, hiện đại, sang trọng nhất 2025
- Tổng hợp 20+ mẫu nhà gác lửng 5x15 đẹp, hiện đại, đáng xây dựng
- Top 150+ Mẫu nhà cấp 4 gác lửng 200 triệu đẹp nhất 2025
7. Mẫu nhà 2 tầng 1 tum nông thôn giá 500 triệu
Mẫu nhà 2 tầng nông thôn 500 triệu có thêm 1 tum được nhiều gia đình lựa chọn nhờ khả năng tối ưu không gian sử dụng mà vẫn kiểm soát tốt chi phí. Phần tum thường được bố trí làm phòng thờ, phòng ngủ nhỏ hoặc sân thượng, giúp tăng diện tích sinh hoạt mà không làm ngôi nhà trở nên nặng nề. Thiết kế này phù hợp với quỹ đất nông thôn, vừa đảm bảo công năng, vừa tạo điểm nhấn kiến trúc hiện đại.

Mẫu nhà 2 tầng 1 tum nông thôn giá 500 triệu đẹp, kiến trúc hiện đại (Nguồn: Internet)
>>> Xem thêm:
- 30+ Mẫu nhà tiền chế nông thôn đơn giản, hiện đại, tiết kiệm chi phí
- 30+ Mẫu nhà container 2 tầng đẹp, chi phí thấp nhất hiện nay
- 45+ mẫu thiết kế nhà 1 trệt 1 lầu đẹp, hiện đại, mới nhất 2025
8. Mẫu nhà 2 tầng nông thôn 500 triệu hiện đại
Mẫu nhà 2 tầng nông thôn 500 triệu phong cách hiện đại ghi điểm nhờ đường nét đơn giản, bố cục rõ ràng và cách phối màu tinh tế. Thiết kế ưu tiên không gian mở, tận dụng ánh sáng tự nhiên và thông gió, mang lại cảm giác thoáng đãng, dễ chịu cho gia đình. Với vật liệu phổ biến và giải pháp thi công hợp lý, mẫu nhà này đáp ứng tốt nhu cầu sinh hoạt tiện nghi mà vẫn phù hợp ngân sách 500 triệu.

Mẫu nhà 2 tầng nông thôn 500 triệu hiện đại với đường nét thiết kế đơn giản (Nguồn: Internet)
>>> Xem thêm:
- Phương án cải tạo nhà 2 tầng cũ đẹp, tiết kiệm chi phí
- 40+ Mẫu nhà 2 tầng 4 phòng ngủ dưới 1 tỷ độc đáo, đẹp nhất 2025
- Báo giá nhà khung thép 2 tầng chi tiết, mới cập nhật 2025
9. Mẫu nhà 2 tầng nông thôn 500 triệu kiểu truyền thống
Mẫu nhà 2 tầng nông thôn 500 triệu kiểu truyền thống phù hợp với những gia đình yêu thích sự quen thuộc và bền vững theo thời gian. Kiến trúc thường sử dụng mái thái hoặc mái ngói, hình khối cân đối, tạo cảm giác ấm cúng và gần gũi với cảnh quan làng quê. Cách bố trí công năng khoa học giúp ngôi nhà vừa đáp ứng sinh hoạt hiện đại, vừa giữ được nét đặc trưng truyền thống của nhà ở nông thôn Việt Nam.

Mẫu nhà 2 tầng nông thôn 500 triệu kiểu truyền thống đẹp, ấm cúng (Nguồn: Internet)
>>> Xem thêm:
- TOP 30 mẫu thiết kế nhà 3 gian truyền thống đơn giản, hiện đại
- 50+ Mẫu nhà 1 trệt 1 lầu 5x15 đẹp, hiện đại, xu hướng nhất 2025
- 150+ Mẫu nhà 1 trệt 1 lầu 5x20 đẹp, xu hướng, mới nhất 2025
10. Mẫu nhà 2 tầng nông thôn 500 triệu đơn giản, chi phí rẻ
Mẫu nhà 2 tầng nông thôn 500 triệu phong cách đơn giản thường có thiết kế gọn gàng, tối ưu công năng và tiết kiệm chi phí xây dựng. Kiến trúc thường sử dụng hình khối vuông vức, hạn chế chi tiết trang trí cầu kỳ, kết hợp vật liệu phổ biến để giảm giá thành nhưng vẫn đảm bảo độ bền và tính thẩm mỹ. Cách bố trí không gian khoa học giúp ngôi nhà đáp ứng tốt nhu cầu sinh hoạt của gia đình 3-5 người, phù hợp với điều kiện kinh tế ở khu vực nông thôn.

Mẫu nhà 2 tầng nông thôn 500 triệu đơn giản, chi phí rẻ (Nguồn: Internet)
>>> Tham khảo thêm:
- 40+ Mẫu nhà lắp ghép 500 triệu đẹp, hiện đại, sang trọng 2025
- 55+ Mẫu nhà cấp 4 giá 500 triệu đẹp, đơn giản, hiện đại, giá rẻ
11. Mẫu nhà 2 tầng nông thôn 500 triệu mái Thái
Nhà 2 tầng nông thôn 500 triệu mái Thái nổi bật với khả năng thoát nước tốt, chống nóng hiệu quả và tạo cảm giác cao ráo, thanh thoát cho tổng thể công trình. Kiểu mái này phù hợp với khí hậu Việt Nam, giúp không gian bên trong luôn thông thoáng, mát mẻ. Bên cạnh đó, nhà mái Thái 2 tầng còn mang lại vẻ đẹp sang trọng, cân đối, dễ kết hợp với nhiều phong cách kiến trúc khác nhau, từ truyền thống đến hiện đại.

Mẫu nhà mái thái 2 tầng nông thôn lệch đẹp, độc đáo (Nguồn: Internet)

Mẫu nhà 2 tầng nông thôn mái thái giật cấp đẹp, sang trọng (Nguồn: Internet)

Mẫu nhà 2 tầng nông thôn 500 triệu mái Thái hiện đại, cân đối (Nguồn: Internet)
>>> Xem thêm:
- 50+ mẫu nhà cấp 4 mái Thái đẹp, đơn giản, tiết kiệm chi phí
- 45+ Mẫu nhà cấp 4 mái Thái 3 phòng ngủ đẹp, hiện đại, giá rẻ
- 50+ Mẫu nhà cấp 4 mái Thái 5x20 đẹp, hiện đại, chi phí thấp
12. Mẫu nhà 2 tầng nông thôn 500 triệu mái Nhật
Mẫu nhà 2 tầng nông thôn 500 triệu mái Nhật ghi điểm nhờ thiết kế hài hòa, tinh tế và hiện đại. Đặc trưng của mái Nhật 2 tầng là độ dốc vừa phải, tạo sự cân bằng giữa tính thẩm mỹ và công năng sử dụng. Kiểu nhà này phù hợp với những gia đình yêu thích phong cách nhẹ nhàng, bền vững, đồng thời vẫn đảm bảo chi phí xây dựng hợp lý và phù hợp với quỹ đất rộng rãi ở nông thôn.

Mẫu nhà 2 tầng nông thôn 500 triệu mái Nhật hiện đại, tinh tế (Nguồn: Internet)

Mẫu nhà 8x12m nhà mái Nhật 2 tầng nông thôn 500 triệu đẹp, đảm bảo công năng sử dụng (Nguồn: Internet)
>>> Xem thêm:
- Mẫu thiết kế nhà biệt thự 2 tầng mái Nhật đẹp, hiện đại, sang trọng
- 40+ Mẫu nhà cấp 4 mái Nhật đẹp, hiện đại, sang trọng 2025
- 35+ Mẫu nhà cấp 4 mái Nhật 3 phòng ngủ đẹp, hiện đại, giá rẻ
13. Mẫu nhà 2 tầng nông thôn mái bằng
Mẫu nhà 2 tầng nông thôn 500 triệu mái bằng được nhiều gia đình lựa chọn nhờ thiết kế hiện đại, hình khối gọn gàng và dễ tối ưu chi phí xây dựng. Kiểu mái này giúp giảm chi phí kết cấu so với mái dốc, đồng thời thuận tiện cho việc mở rộng công năng như làm sân thượng, trồng cây xanh hoặc lắp đặt hệ thống năng lượng mặt trời. Không gian bên trong được bố trí khoa học, đáp ứng tốt nhu cầu sinh hoạt của gia đình 3-5 thành viên, phù hợp với xu hướng sống tiện nghi tại khu vực nông thôn hiện nay.

Mẫu nhà 2 tầng nông thôn 500 triệu mái bằng hiện đại, tối ưu chi phí (Nguồn: Internet)

Mẫu nhà 2 tầng nông thôn 500 triệu mái bằng đẹp, phù hợp cho gia đình 3 - 5 thành viên (Nguồn: Internet)
- 30+ Mẫu nhà cấp 4 đẹp 5x20 hiện đại, chi phí thấp, xu hướng
- 55+ Mẫu nhà cấp 4 mái bằng đẹp, đơn giản, hiện đại
- 30+ Mẫu nhà cấp 4 mái bằng chữ L đẹp, hiện đại, tiết kiệm
14. Mẫu nhà 2 tầng nông thôn 500 triệu chữ L
Mẫu nhà 2 tầng nông thôn 500 triệu chữ L nổi bật với khả năng tận dụng diện tích đất hiệu quả và tạo khoảng sân rộng rãi phía trước hoặc bên hông nhà. Thiết kế nhà chữ L giúp phân tách rõ khu vực sinh hoạt chung và không gian riêng tư, mang lại sự thông thoáng và tiện lợi trong quá trình sử dụng. Với ngân sách khoảng 500 triệu, gia chủ có thể dễ dàng lựa chọn phong cách đơn giản, vật liệu phổ thông nhưng vẫn đảm bảo tính thẩm mỹ và công năng lâu dài.

Mẫu nhà 2 tầng chữ L 100m2 ở nông thôn giá 500 triệu giúp tận dụng diện tích đất hiệu quả (Nguồn: Internet)

Mẫu nhà 2 tầng nông thôn 500 triệu chữ L đơn giản, hiện đại (Nguồn: Internet)
>>> Xem thêm:
- Top 90+ mẫu nhà cấp 4 chữ L đẹp, tiện nghi ở nông thôn
- 150+ Mẫu nhà cấp 4 chữ L mái tôn đẹp, ấn tượng, tối ưu chi phí
- 59+ Mẫu nhà cấp 4 chữ L 3 phòng ngủ đẹp, hiện đại, giá rẻ 2025
15. Mẫu nhà ống 2 tầng nông thôn 500 triệu
Đối với những lô đất có mặt tiền hẹp, nhà 2 tầng nông thôn 500 triệu dạng nhà ống là giải pháp hợp lý và tiết kiệm. Kiểu nhà này thường được thiết kế theo chiều sâu, chú trọng vào việc lấy sáng và thông gió tự nhiên thông qua giếng trời hoặc cửa sổ lớn. Nhờ cách bố trí không gian hợp lý, nhà ống 2 tầng vẫn đáp ứng đầy đủ các khu vực chức năng cần thiết, đồng thời phù hợp với điều kiện tài chính và quỹ đất phổ biến ở khu vực nông thôn.

Mẫu nhà ống 2 tầng nông thôn 500 triệu hiện đại, tối ưu ánh sáng và thông gió tốt (Nguồn: Internet)
>>> Xem thêm:
- 99+ Mẫu nhà ống 3 tầng đẹp, đơn giản, hiện đại, mới nhất 2025
- 30+ Mẫu nhà ống đẹp 3 tầng 4m phổ biến nhất 2025
- 35+ Mẫu nhà ống đẹp 3 tầng 5m được yêu thích nhất 2025
Đặc trưng của mẫu nhà 2 tầng nông thôn 500 triệu
Mẫu nhà 2 tầng nông thôn 500 triệu có các đặc điểm nổi bật sau:
- Tổng quan thiết kế: Nhà 2 tầng nông thôn 500 triệu thường được định hình theo phong cách tối giản, hiện đại hoặc truyền thống, chú trọng công năng sử dụng và kiểm soát chi phí. Thiết kế ưu tiên sự gọn gàng, dễ thi công, phù hợp điều kiện xây dựng ở khu vực nông thôn và nhu cầu sinh hoạt của gia đình 3–5 người.
- Đặc điểm kiến trúc & hình thức: Kiến trúc hiện đại sử dụng hình khối vuông vắn, đường nét rõ ràng, hạn chế chi tiết trang trí cầu kỳ, kết hợp gam màu sáng như trắng, kem, be để tạo cảm giác thoáng đãng. Trong khi đó, phong cách truyền thống nổi bật với mái ngói đỏ, tông màu nâu - kem, mang lại sự gần gũi, quen thuộc với không gian làng quê Việt. Kiểu dáng phổ biến gồm nhà ống, nhà chữ L, nhà mái bằng, nhà mái Nhật, nhà mái lệch hoặc bố trí thêm gác lửng nhằm tăng diện tích sử dụng.
- Công năng sử dụng: Không gian được phân chia khoa học và hợp lý. Tầng trệt thường bố trí phòng khách và bếp ăn liên thông để tối ưu diện tích và tạo sự thông thoáng. Tầng trên là khu vực nghỉ ngơi với phòng ngủ và nhà vệ sinh chung. Tổng thể công năng đáp ứng đầy đủ tiện nghi cơ bản với 2-3 phòng ngủ, 1-2 WC, phòng thờ tích hợp hoặc bố trí riêng, kèm khu vực sân phơi.
- Vật liệu & kiểm soát chi phí: Vật liệu xây dựng được lựa chọn theo tiêu chí bền, dễ tìm và giá thành hợp lý như mái tôn chóng nóng hoặc ngói sóng, cửa nhôm kính, gạch men đơn giản. Việc tối ưu thiết kế ngay từ đầu giúp kiểm soát ngân sách hiệu quả, đảm bảo tổng chi phí xây dựng trong khoảng 500 triệu đồng.

Mẫu nhà 2 tầng nông thôn 500 triệu thường có thiết kế tối giản, hiện đại hoặc truyền thống (Nguồn: Internet)
>>> Tham khảo thêm:
- Nhà cấp 4 là gì? Đặc điểm, cách phân biệt và quy định mới nhất
- Nhà tiền chế là gì? Thông tin A-Z về nhà tiền chế mới nhất
- Nhà lắp ghép di động là gì? Báo giá và các mẫu nhà đẹp hiện nay
Ưu và nhược điểm của mẫu nhà 2 tầng nông thôn 500 triệu
Mẫu nhà 2 tầng nông thôn 500 triệu có các ưu và nhược điểm sau:
Ưu điểm
- Tối ưu không gian: Mẫu nhà 2 tầng nông thôn 500 triệu giúp tận dụng hiệu quả quỹ đất, đặc biệt với lô đất hẹp. Thiết kế 2 tầng cho phép phân chia rõ ràng khu vực sinh hoạt chung và không gian nghỉ ngơi, phù hợp cả đất rộng lẫn đất hạn chế chiều ngang.
- Đầy đủ công năng: Cách bố trí khoa học giúp ngôi nhà vẫn đảm bảo phòng khách, bếp, từ 2-3 phòng ngủ, WC, phòng thờ và sân phơi, đáp ứng tốt nhu cầu sinh hoạt của gia đình từ 3-5 người.
- Chi phí hợp lý, dễ thi công: Thiết kế theo hướng tối giản, sử dụng vật liệu phổ biến và kết cấu không quá phức tạp giúp kiểm soát ngân sách hiệu quả, đồng thời rút ngắn thời gian thi công.
- Thẩm mỹ đa dạng: Nhà có thể linh hoạt lựa chọn nhiều phong cách như mái Thái, mái Nhật hoặc mái bằng, mang đến diện mạo hiện đại, hài hòa với cảnh quan nông thôn.
- Tính linh hoạt cao: Không gian dễ bố trí riêng tư cho từng thành viên và thuận tiện cải tạo, mở rộng hoặc nâng cấp trong tương lai khi nhu cầu thay đổi.

Mẫu nhà 2 tầng nông thôn 500 triệu với ưu điểm tối ưu không gian và đầy đủ công năng (Nguồn: Internet)
Nhược điểm
- Bất tiện cầu thang: Thiết kế 2 tầng bắt buộc có cầu thang, dễ chiếm diện tích sử dụng và có thể gây bất tiện, đặc biệt với người lớn tuổi hoặc trẻ nhỏ nếu không xử lý an toàn tốt.
- Chi phí mái Thái cao hơn: Nếu gia chủ lựa chọn thiết kế mái Thái cầu kỳ, chi phí thi công và thời gian hoàn thiện thường cao hơn so với mái bằng hoặc mái tôn.
- Cần cân đối vật liệu: Với ngân sách nhà 2 tầng nông thôn 500 triệu, gia chủ cần lựa chọn vật liệu thông minh, chất lượng ở mức phù hợp để đảm bảo độ bền lâu dài và tính thẩm mỹ tổng thể.

Mẫu nhà 2 tầng nông thôn 500 triệu thường có nhược điểm về chi phí mái, cân đối về vật liệu (Nguồn: Internet)
>> Tìm hiểu thêm:
- Nhà sàn là gì? Khám phá các mẫu nhà sàn độc đáo, ấn tượng 2025
- Nhà cấp 3 là gì? Cách phân loại nhà ở tại Việt Nam
- Nhà mái Nhật là gì? Cách phân biệt nhà mái Nhật và nhà mái Thái
Lưu ý khi xây mẫu nhà 2 tầng nông thôn 500 triệu
Khi xây mẫu nhà 2 tầng nông thôn 500 triệu, các gia chủ và quý thầu thợ cần lưu ý các điều sau:
- Chọn mẫu nhà phù hợp: Việc lựa chọn mẫu nhà phù hợp là bước khởi đầu quan trọng khi xây nhà 2 tầng nông thôn 500 triệu. Gia chủ cần cân nhắc kỹ diện tích đất, số lượng thành viên, nhu cầu sinh hoạt, phong cách kiến trúc mong muốn và điều kiện khí hậu địa phương. Mẫu nhà phù hợp không chỉ giúp tối ưu công năng, kiểm soát chi phí mà còn thể hiện gu thẩm mỹ và cá tính của gia đình.
- Lựa chọn vật liệu xây dựng phù hợp, tiết kiệm chi phí: Vật liệu xây dựng chiếm tỷ trọng lớn trong tổng chi phí. Để tiết kiệm mà vẫn đảm bảo độ bền và an toàn, nên ưu tiên vật liệu sẵn có tại địa phương, chủ động so sánh giá từ nhiều nhà cung cấp. Bên cạnh đó, việc sử dụng tấm bê tông nhẹ DURAflex làm các hạng mục như: vách ngăn phòng khách và bếp, vách ngăn phòng khách, vách ngăn phòng ngủ, vách ngăn phòng thờ, vách ngăn cầu thang, tấm lót sàn, ốp tường trang trí, lót mái chống nóng và thiết kế không gian hợp lý sẽ giúp giảm lượng vật liệu sử dụng, từ đó tối ưu ngân sách xây dựng.
- Chọn nội thất đơn giản, tiện dụng: Thay vì đầu tư nội thất cao cấp, gia chủ nên ưu tiên các sản phẩm thiết kế đơn giản, công năng tốt và giá thành hợp lý như bồn cầu hai khối, sen tắm tiết kiệm nước, lavabo hiện đại hoặc thiết bị bếp nhỏ gọn, dễ lắp đặt. Cách lựa chọn này giúp đảm bảo tiện nghi sinh hoạt mà vẫn phù hợp với mức đầu tư của nhà 2 tầng nông thôn 500 triệu.
- Quan tâm đến phong thủy nhà ở: Phong thủy là yếu tố được nhiều gia đình chú trọng khi xây nhà. Việc xác định hướng nhà, bố trí phòng ốc và lựa chọn màu sắc theo nguyên tắc phong thủy được cho là giúp mang lại sự hài hòa, may mắn và sức khỏe. Tuy nhiên, gia chủ nên tìm hiểu kỹ và tham khảo ý kiến chuyên gia để áp dụng phù hợp với thực tế.
- Dự trù chi phí phát sinh: Trong quá trình thi công, các khoản phát sinh là điều khó tránh khỏi. Vì vậy, cần lập dự toán chi tiết cho từng hạng mục như móng, phần thô, hoàn thiện, điện nước và nội thất. Đồng thời, nên dành sẵn khoảng 10-15% ngân sách dự phòng để chủ động xử lý các tình huống ngoài kế hoạch, giúp quá trình xây dựng diễn ra suôn sẻ và đúng tiến độ.

Lưu ý khi xây mẫu nhà 2 tầng nông thôn 500 triệu cần chọn thiết kế phù hợp (Nguồn: Internet)
Bản vẽ công năng của mẫu nhà 2 tầng nông thôn 500 triệu
Dưới đây là một số bản vẽ thiết kế nhà 2 tầng nông thôn 500 triệu đầy đủ tiện nghi mà các gia chủ và quý thầu thợ có thể tham khảo:
Tầng 1
Trong bản vẽ công năng nhà 2 tầng nông thôn 500 triệu, tầng 1 thường được bố trí tập trung vào không gian sinh hoạt chung để tối ưu diện tích và chi phí xây dựng. Khu vực phòng khách đặt gần cửa chính giúp đón sáng và tạo sự thông thoáng ngay từ lối vào, đồng thời thuận tiện cho việc tiếp khách. Tiếp nối là không gian bếp - phòng ăn thiết kế liền mạch, vừa tiết kiệm diện tích vừa tăng tính kết nối giữa các thành viên trong gia đình. Ngoài ra, tầng 1 thường bố trí một phòng ngủ nhỏ cho người lớn tuổi và một nhà vệ sinh chung, đảm bảo sự tiện nghi trong sinh hoạt hằng ngày.

Bản vẽ công năng tầng 1 của mẫu nhà 2 tầng nông thôn 500 triệu (Nguồn: Internet)
Tầng 2
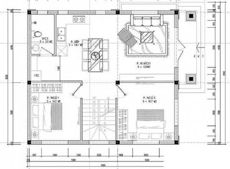
Không gian tầng 2 của nhà 2 tầng nông thôn 500 triệu được ưu tiên cho khu vực nghỉ ngơi và sinh hoạt riêng tư. Bản vẽ công năng phổ biến gồm 2 phòng ngủ với diện tích vừa phải, bố trí cửa sổ hợp lý để lấy sáng và thông gió tự nhiên. Một nhà vệ sinh chung được đặt ở vị trí trung tâm giúp các phòng sử dụng thuận tiện. Tùy nhu cầu, tầng 2 có thể kết hợp thêm khu vực sinh hoạt chung nhỏ hoặc ban công phía trước, vừa tăng tính thẩm mỹ cho ngôi nhà vừa tạo không gian thư giãn cho gia đình.

Bản vẽ công năng tầng 2 của mẫu nhà 2 tầng nông thôn 500 triệu (Nguồn: Internet)
>> Tham khảo thêm:
- Top 25+ bản vẽ nhà cấp 4 đơn giản, đầy đủ chi tiết nhất 2025
- 20+ Bản vẽ nhà cấp 4 3 phòng ngủ 100m2 chi tiết, đầy đủ tiện nghi
Dự kiến chi phí xây mẫu nhà 2 tầng nông thôn 500 triệu
Với ngân sách khoảng 500 triệu đồng, việc xây dựng nhà 2 tầng nông thôn 500 triệu là hoàn toàn khả thi nếu gia chủ có phương án thiết kế và phân bổ chi phí hợp lý. Theo đó, nên ưu tiên phong cách kiến trúc đơn giản, gọn gàng như mái bằng hoặc mái Thái lệch, với diện tích xây dựng mỗi tầng khoảng 60-80m2, tương đương tổng diện tích sàn từ 100-120m2.
Chi phí xây nhà 500 triệu ở nông thôn thường được chia thành hai phần chính gồm xây thô và hoàn thiện, trong đó đơn giá xây thô dao động khoảng 2,5-3,7 triệu đồng/m2, còn hoàn thiện ở mức 2-3,3 triệu đồng/m2. Tùy vào chủng loại vật liệu, mức độ hoàn thiện và giá nhân công tại từng địa phương, tổng chi phí thực tế có thể dao động trong khoảng 400-600 triệu đồng. Tuy nhiên, nếu kiểm soát tốt vật tư và lựa chọn giải pháp thi công phù hợp, gia chủ hoàn toàn có thể đạt mức chi phí trung bình khoảng 4,5- triệu đồng/m2 trọn gói, đảm bảo công năng sử dụng và tính bền vững lâu dài cho ngôi nhà.

Chi phí xây mẫu nhà 2 tầng nông thôn 500 triệu (Nguồn: Internet)
>> Xem thêm:
- Đơn giá xây dựng nhà thép tiền chế chi tiết, mới nhất hiện nay
- Chi phí xây nhà cấp 4 trọn gói chi tiết, mới nhất 2025
Sở hữu một ngôi nhà 2 tầng đẹp, tiện nghi với ngân sách 500 triệu đồng tại nông thôn là điều hoàn toàn khả thi nếu bạn có kế hoạch xây dựng thông minh và lựa chọn vật liệu tối ưu. Việc áp dụng các giải pháp vật liệu nhẹ, bền chắc như tấm xi măng DURAflex Low Carbon cho vách ngăn, sàn, hoặc sử dụng tấm vân gỗ DURAwood để trang trí mặt tiền không chỉ giúp tiết kiệm chi phí đáng kể mà còn đảm bảo chất lượng và tuổi thọ công trình.
Đừng ngần ngại biến ước mơ tổ ấm thành hiện thực ngay hôm nay. Để nhận tư vấn chuyên sâu về giải pháp vật liệu xây dựng thông minh và báo giá các sản phẩm tối ưu chi phí, quý khách vui lòng liên hệ: 18001218 hoặc bấm: TƯ VẤN NGAY






Đánh giá và nhận xét
Đánh giá trung bình
0/5
5
4
3
2
1
Chia sẻ và nhận xét về bài viết
Chia sẻ và nhận xét về bài viết
Bài viết chưa có đánh giá nào